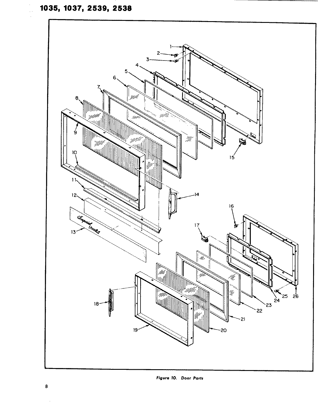
| 1 | PANEL, DOOR (LG) |
| 4 | RETAINER, GLASS (LG DOOR) |
| 5 | SEAL, DOOR |
| 6 | GLASS |
| 7 | SPACER, GLASS (LG) |
| 8 | DOOR GLASS, INSIDE, LARGE |
| 9 | FRAME, EXTERNAL DOOR |
| 10 | DOOR SEAL |
| 11 | DIVIDER, DOOR |
| 12 | BOX, SPACER |
| 13 | PANEL, NAME |
| 16 | TINNERMAN |
| 17 | LATCH, MAGNETIC |
| 18 | DOOR HANDLE |
| 19 | FRAME, EXTERNAL DOOR |
| 20 | DOOR GLASS, OUTSIDE,SMALL |
| 21 | SPACER, GLASS (SM) |
| 22 | DOOR GLASS, INSIDE, SMALL |
| 23 | SEAL, GLASS (RH DOOR) |
| 24 | RETAINER, GLASS (SM DOOR) |
| 25 | CLIP, J |
| 26 | PANEL, DOOR (SM) |