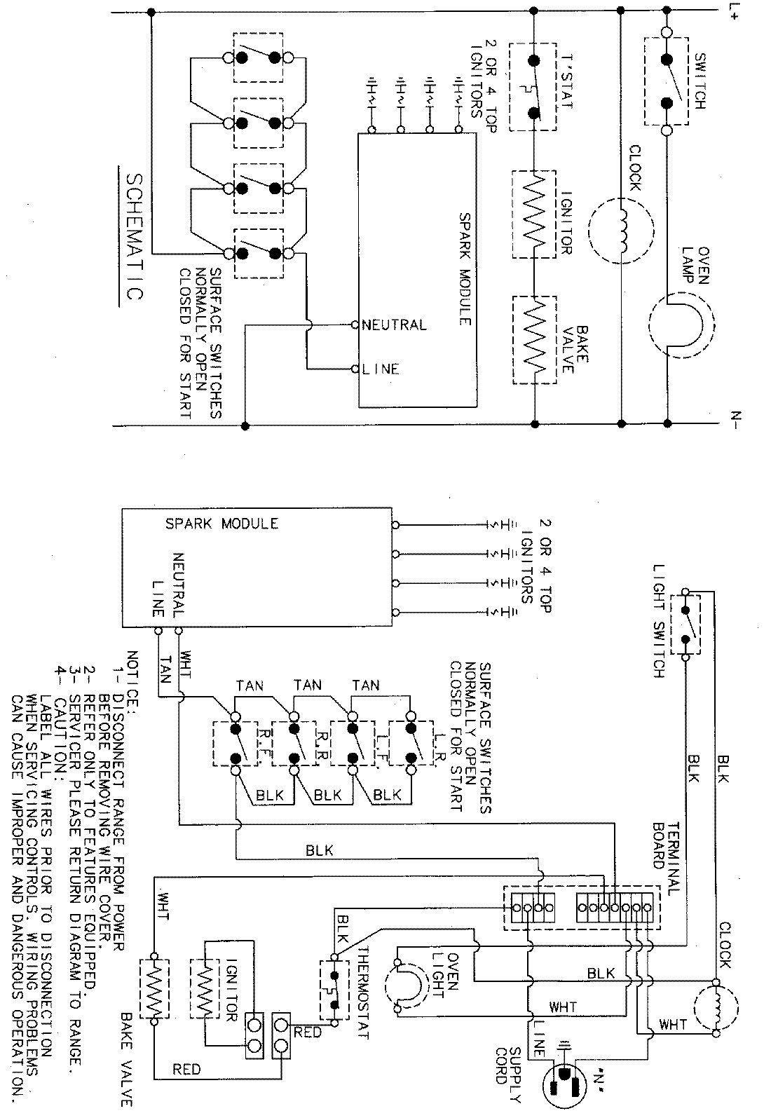
61S14WAA 06 – WIRING INFORMATIONadmin2025-04-26T12:01:04+00:0061S14WAA 06 – WIRING INFORMATION ProductsPositionProductNIMAY 15001812