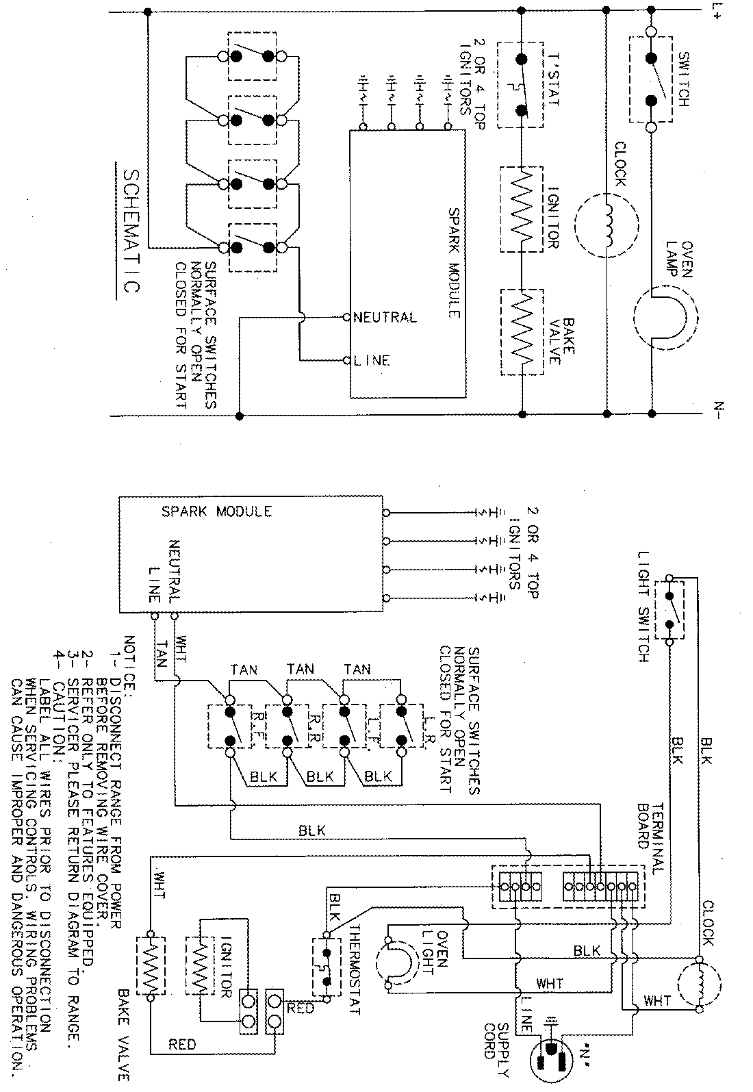
62S14XAA 06 – WIRING INFORMATIONadmin2025-04-26T12:25:44+00:0062S14XAA 06 – WIRING INFORMATION ProductsPositionProductNIMAY 15001812