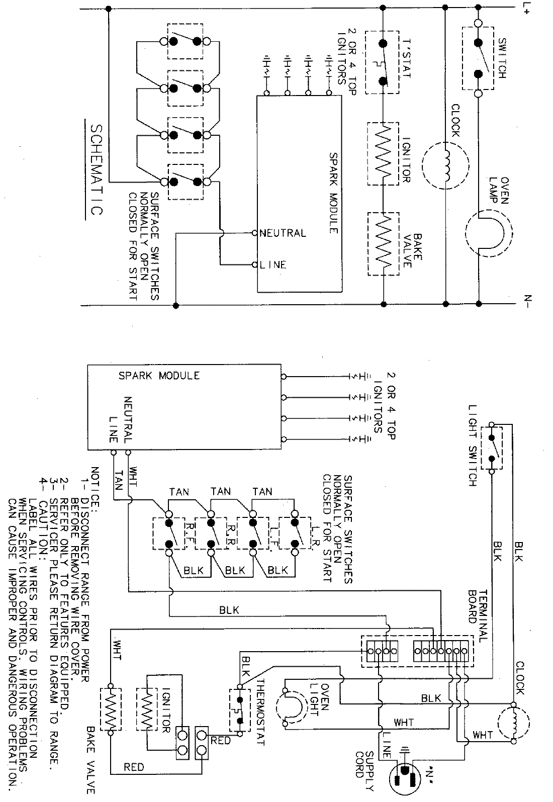
62S14XAS 06 – WIRING INFORMATIONadmin2025-04-26T12:22:40+00:0062S14XAS 06 – WIRING INFORMATION ProductsPositionProductNIMAY 15001812