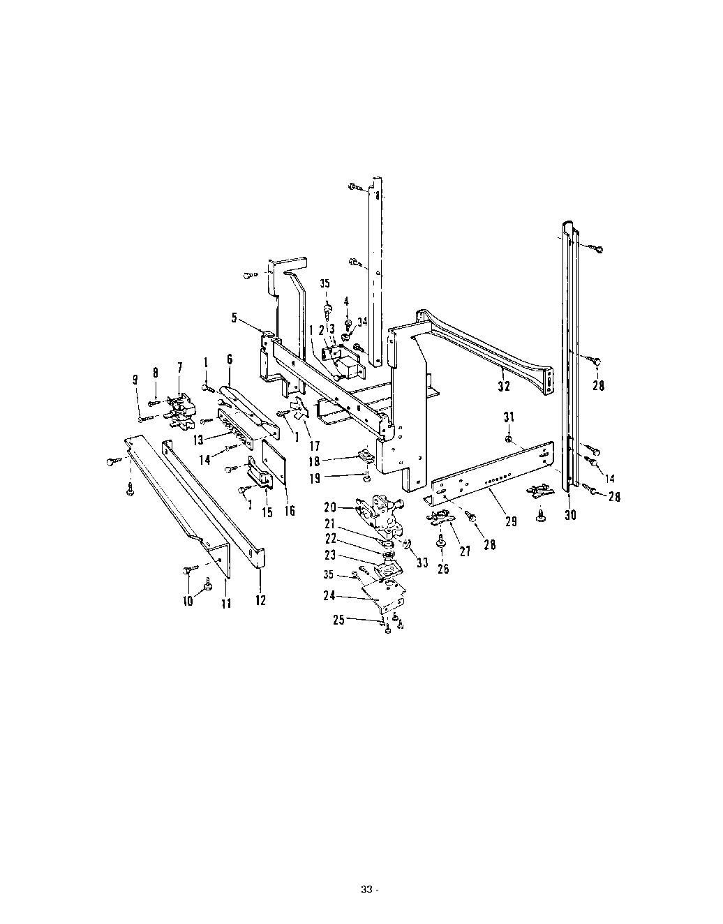
8565L00 22 – FRAME