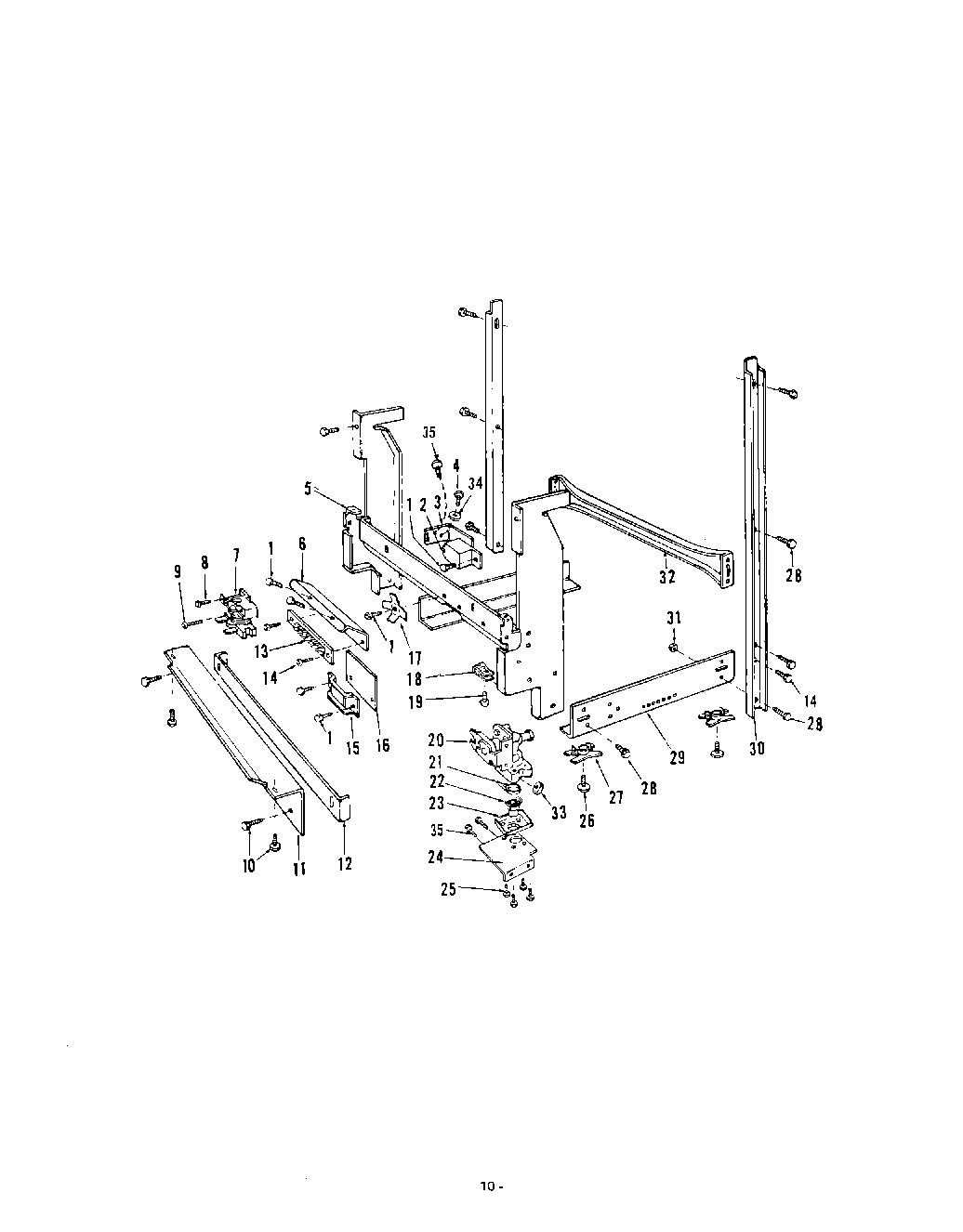
8585L00 07 – FRAME