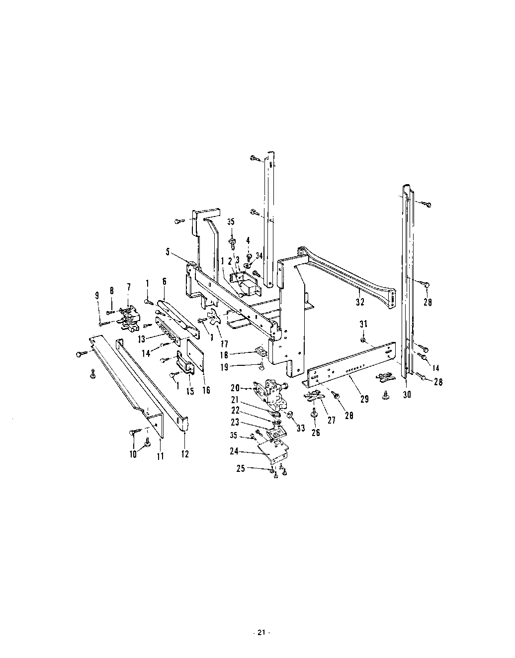
8585L00 14 – FRAME