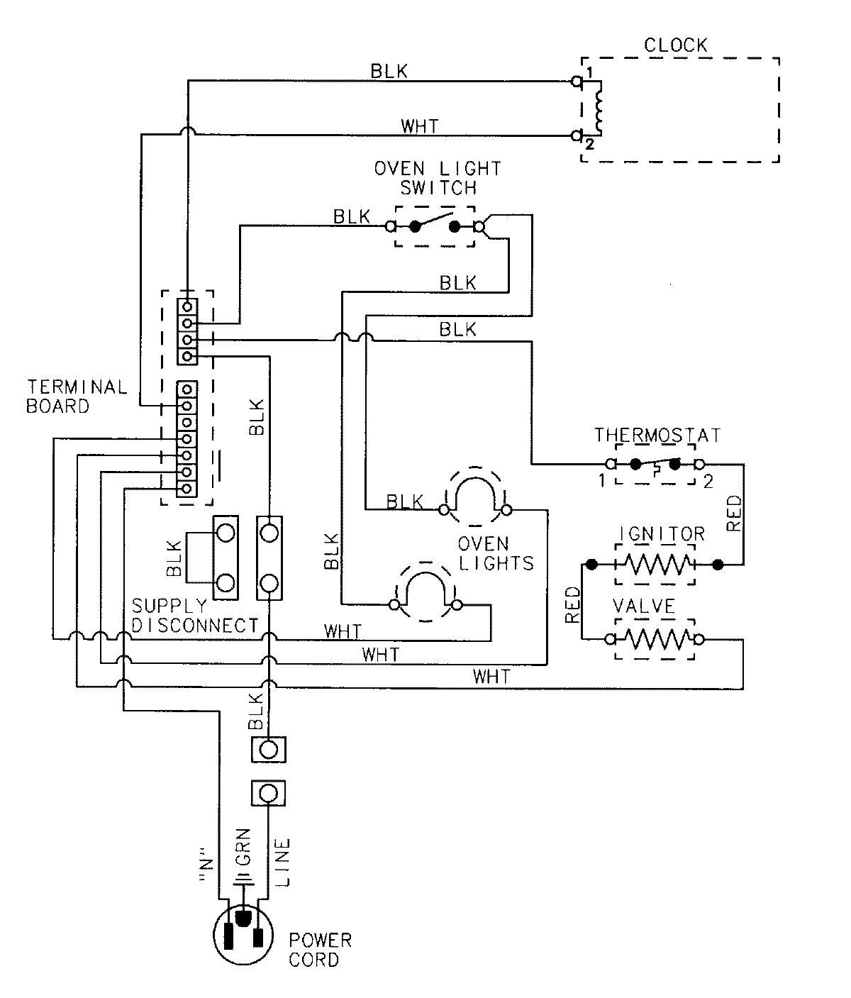
9122VUV 05 – WIRING INFORMATIONadmin2025-04-26T09:25:42+00:009122VUV 05 – WIRING INFORMATION ProductsPositionProductNIMAY 15001522