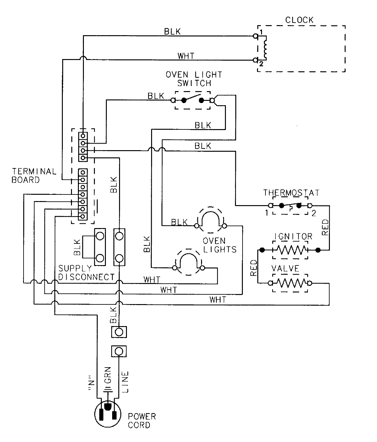
9222VUV 05 – WIRING INFORMATIONadmin2025-04-26T08:55:56+00:009222VUV 05 – WIRING INFORMATION ProductsPositionProductNIMAY 15001522