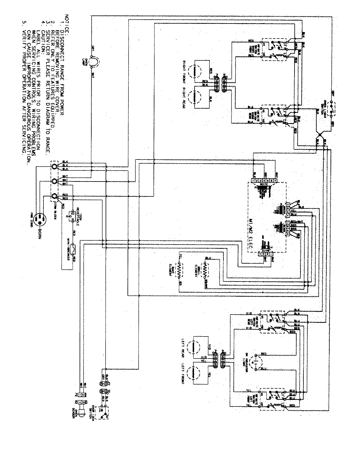
AER5511ACW 07 – WIRING INFORMATIONadmin2025-04-26T08:55:58+00:00AER5511ACW 07 – WIRING INFORMATION ProductsPositionProductNIMAY 15003611