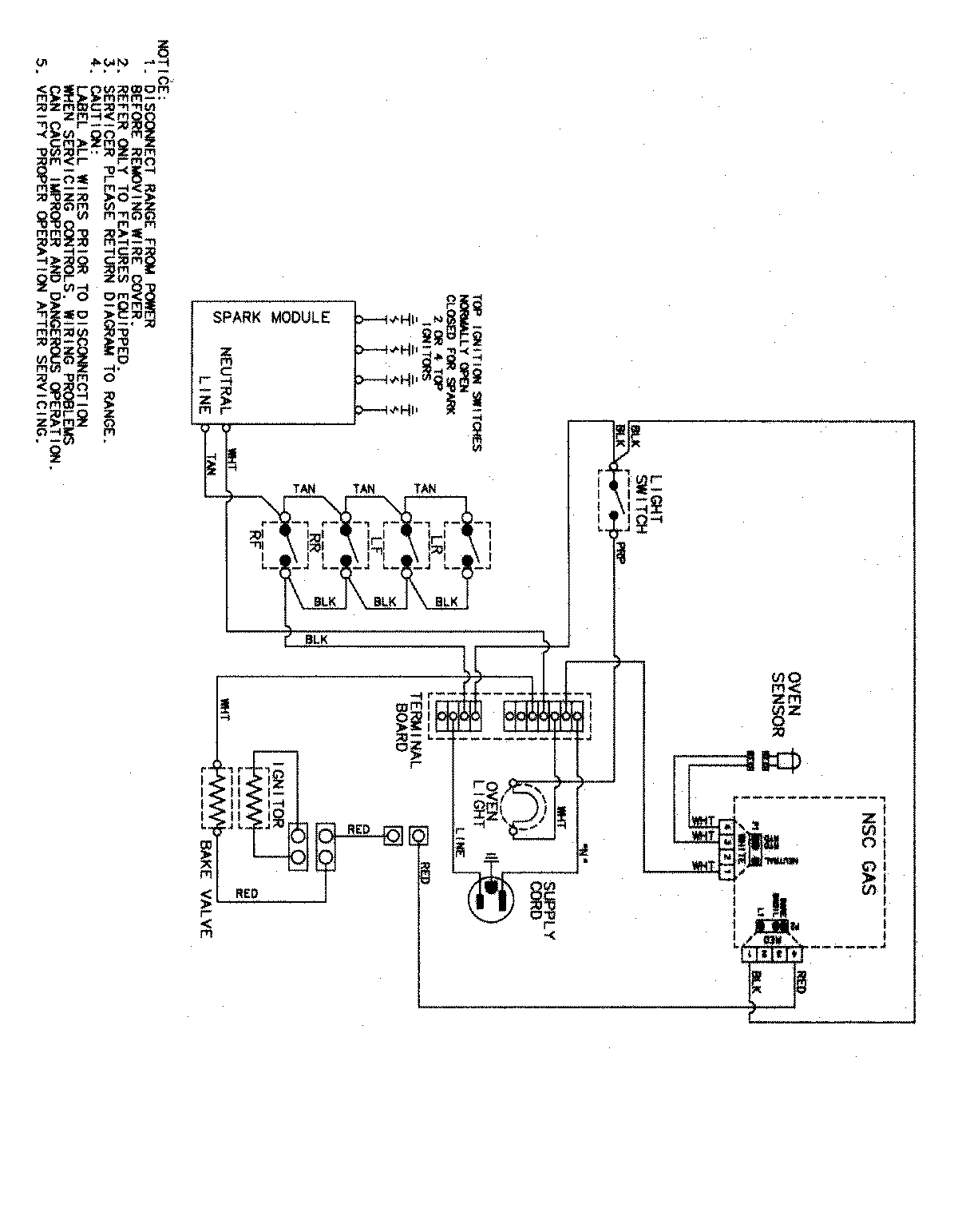
AGR4412ADQ 07 – WIRING INFORMATIONadmin2025-04-26T12:25:16+00:00AGR4412ADQ 07 – WIRING INFORMATION ProductsPositionProductNIMAY 15003530