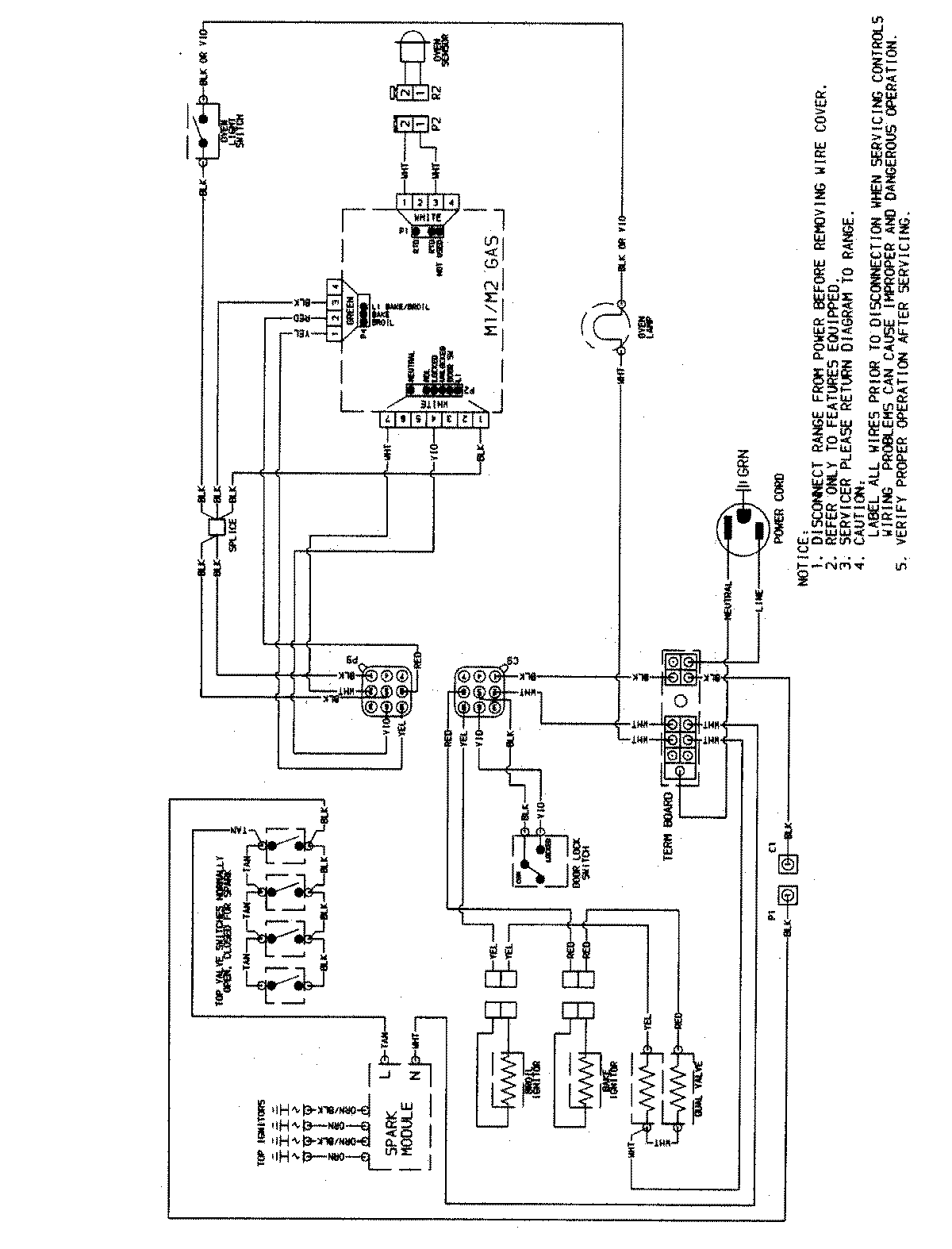
AGR5712ADS 07 – WIRING INFORMATIONadmin2025-04-26T11:33:17+00:00AGR5712ADS 07 – WIRING INFORMATION ProductsPositionProductNIMAY 15003515