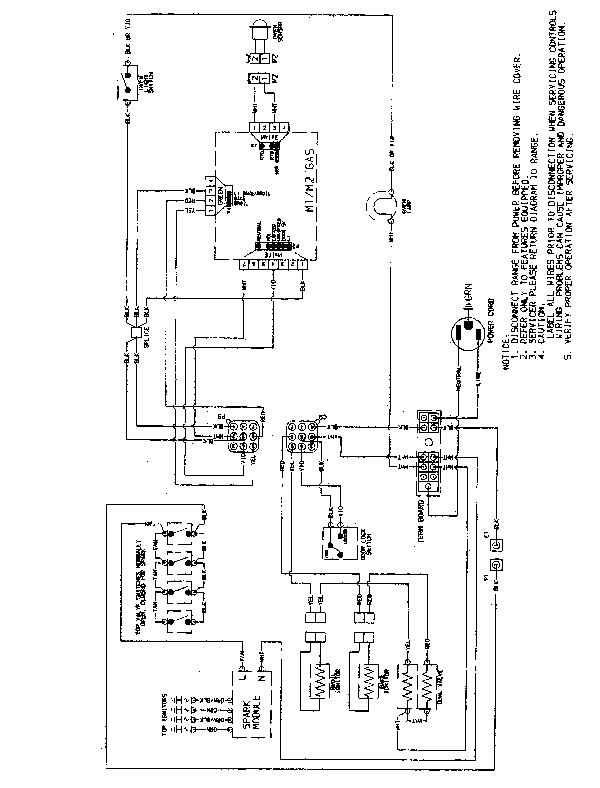
AGR5712ADW 07 – WIRING INFORMATIONadmin2025-04-26T12:25:23+00:00AGR5712ADW 07 – WIRING INFORMATION ProductsPositionProductNIMAY 15003515