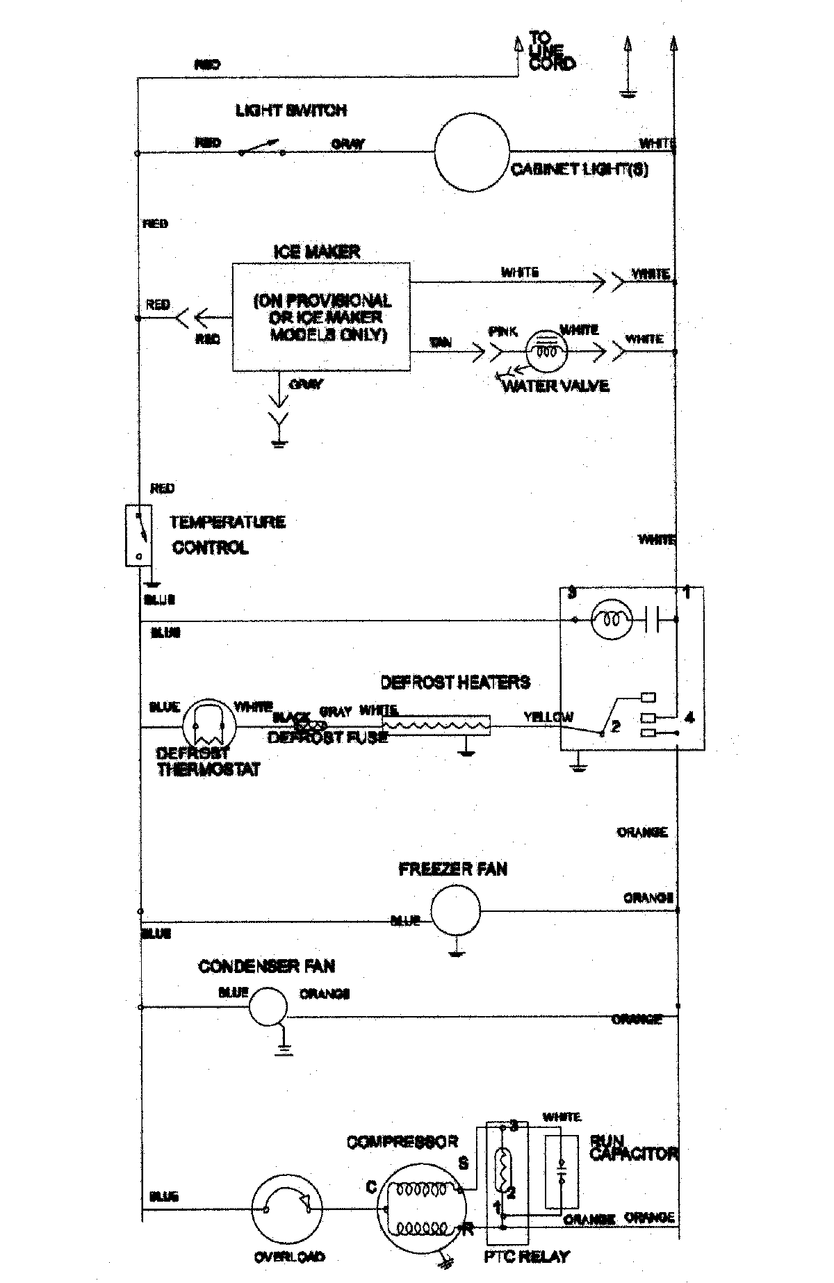
ATB1504ARB 09 – WIRING INFORMATIONadmin2025-04-26T08:56:20+00:00ATB1504ARB 09 – WIRING INFORMATION ProductsPositionProductNIMAY 15003473