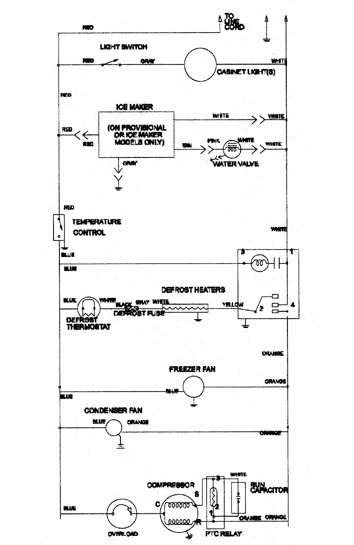
ATB1504ARW 09 – WIRING INFORMATIONadmin2025-04-26T08:56:23+00:00ATB1504ARW 09 – WIRING INFORMATION ProductsPositionProductNIMAY 15003473