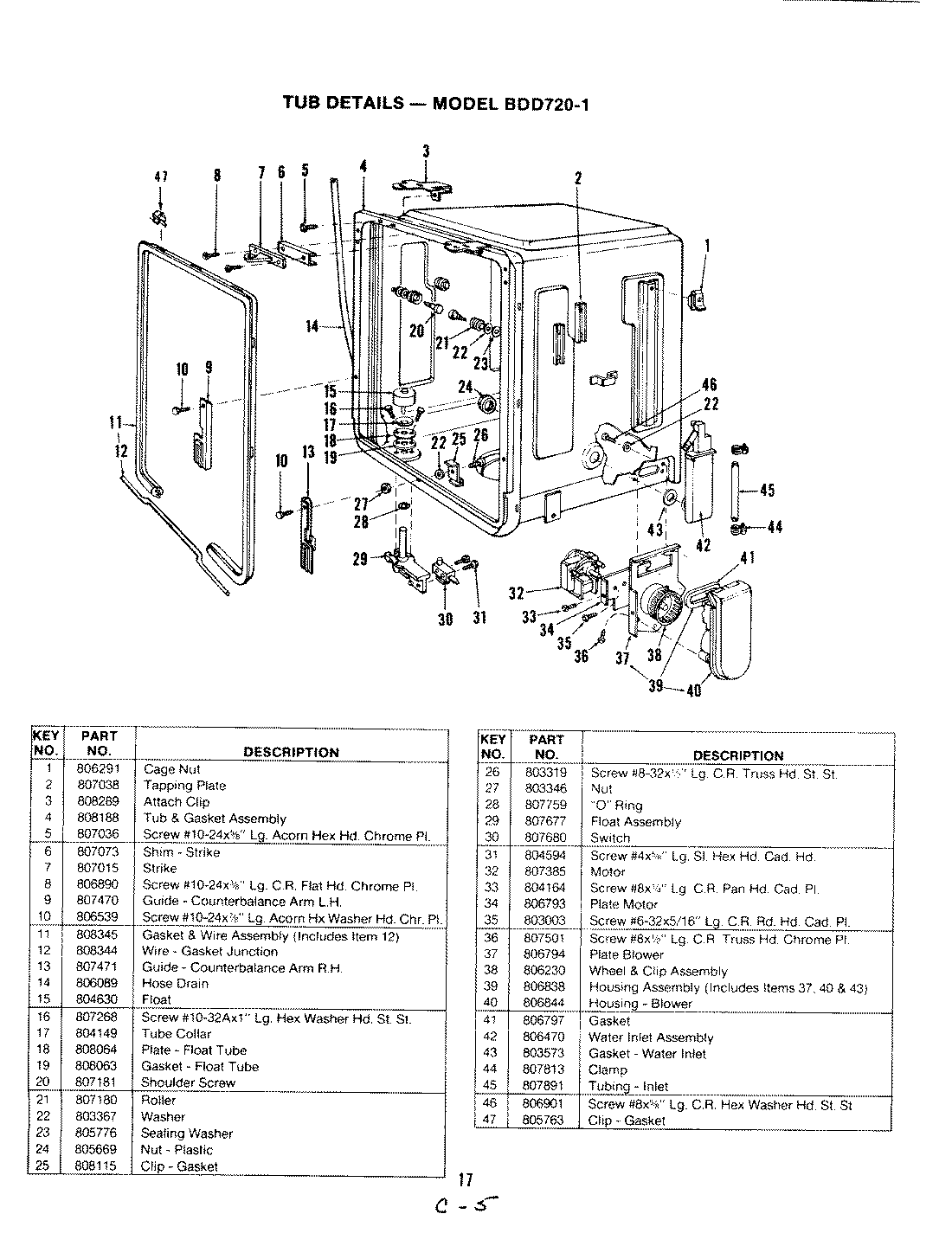
BDD620-1 09 – TUB (BDD720-1)admin2025-04-26T11:17:34+00:00BDD620-1 09 – TUB (BDD720-1) ProductsPositionProduct2TAPPING PLATE3CLIP4MAY 8081885SCREW6STRIKE SHIM7STRIKE8MAY 8068909LH GUIDE10MAY 80653911DOOR GASKET12WIRE,GASKT JUNC13RH GUIDE14MAY 80608915MAY 80463016MAY 80726817MAY 80414918PLATE, FLOAT TUBE19GASKET20SCREW21ROLLER22MAY 80336723SEALER24MAY 80566925MAY 80811526MAY 80331927MAY 80334628O RING29FLOAT ASM30FLOAT SWITCH31BOLT32BLOWER MOTOR33SCREW34PLATE35SCREW36MAY 80750137PLATE38BLOWER WHEEL39MAY 80683840MAY 80684441GASKET42MAY 80647043WASHER44MAY 80781345INLET TUBE46SCREW47CLIP KIT (TUB GASKET)