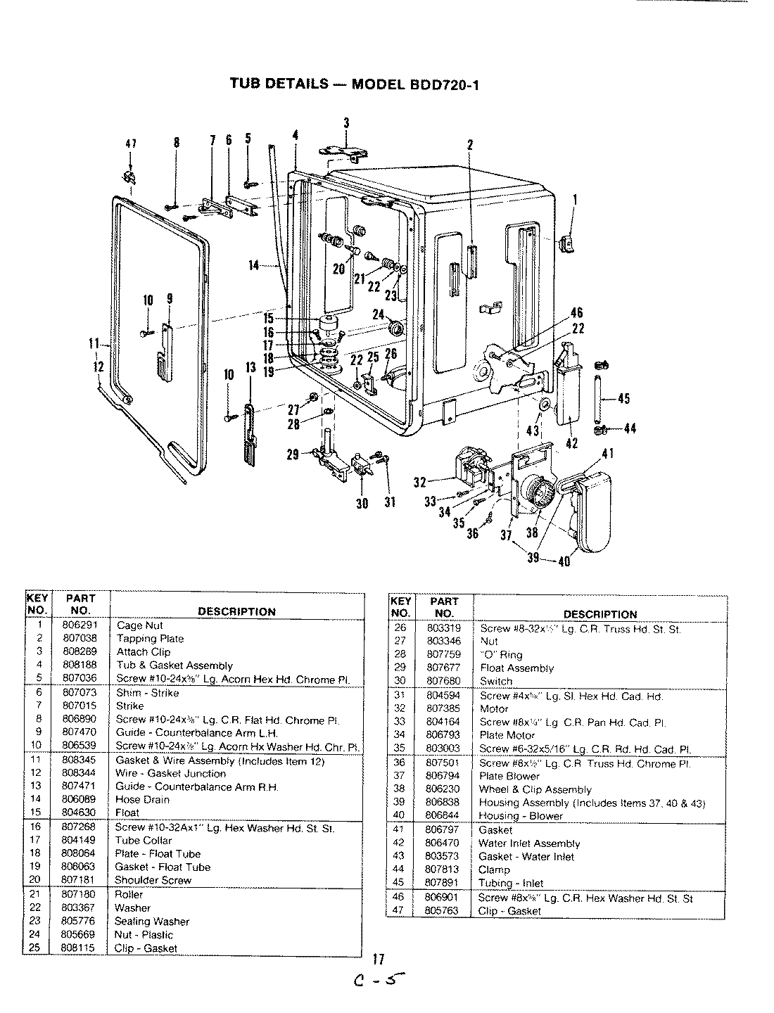
BDD720-1 09 – TUB (BDD720-1)