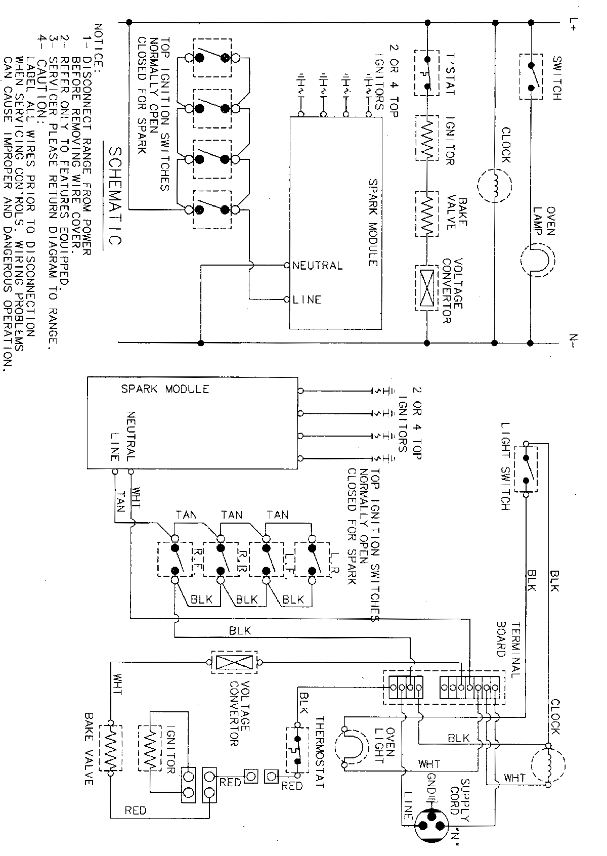
CBR1430BGH 08 – WIRING INFORMATIONadmin2025-04-26T11:15:25+00:00CBR1430BGH 08 – WIRING INFORMATION ProductsPositionProductNIMAY 15001914