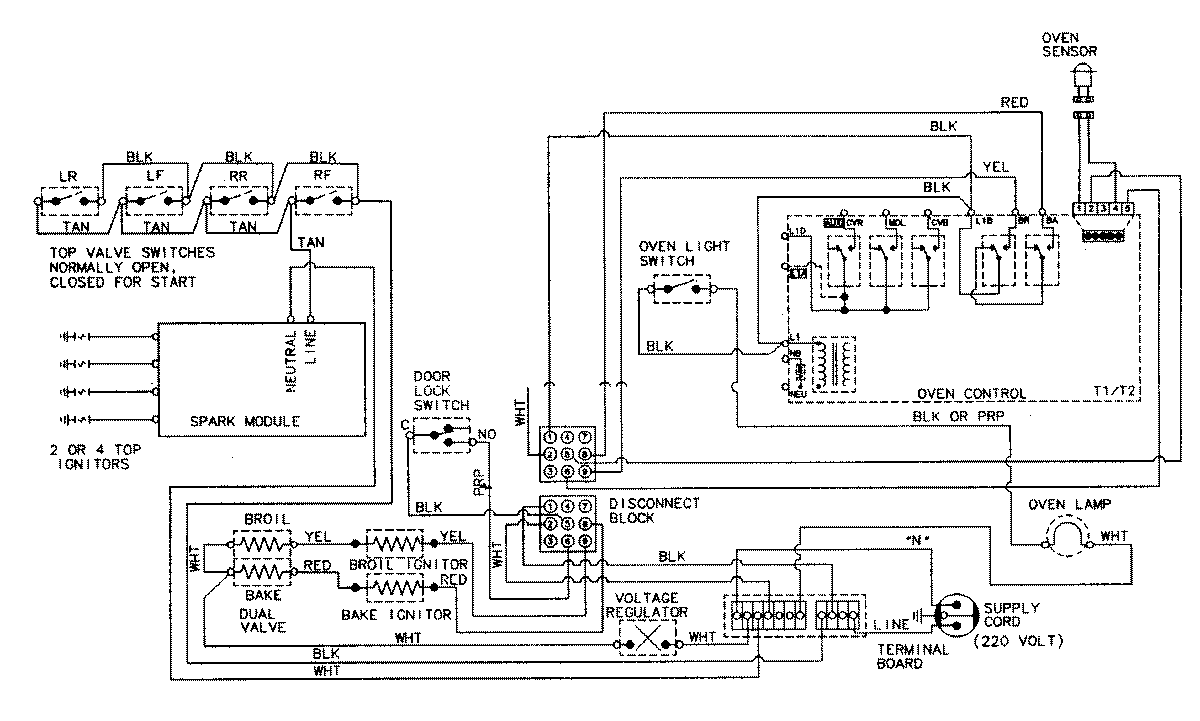
CBR3765AGC 07 – WIRING INFORMATIONadmin2025-04-26T11:13:53+00:00CBR3765AGC 07 – WIRING INFORMATION ProductsPositionProductNIMAY 15002435