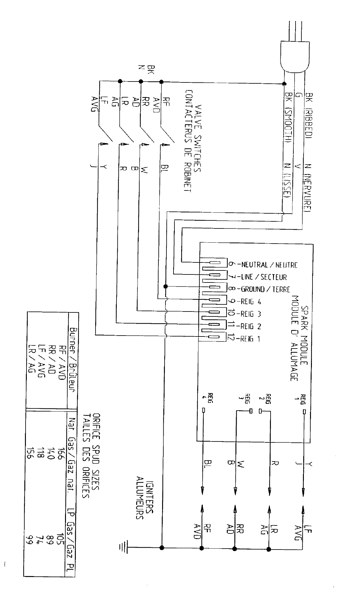
CCG2422W 03 – WIRING INFORMATIONadmin2025-04-26T11:13:43+00:00CCG2422W 03 – WIRING INFORMATION ProductsPositionProductNIMAY 15001823