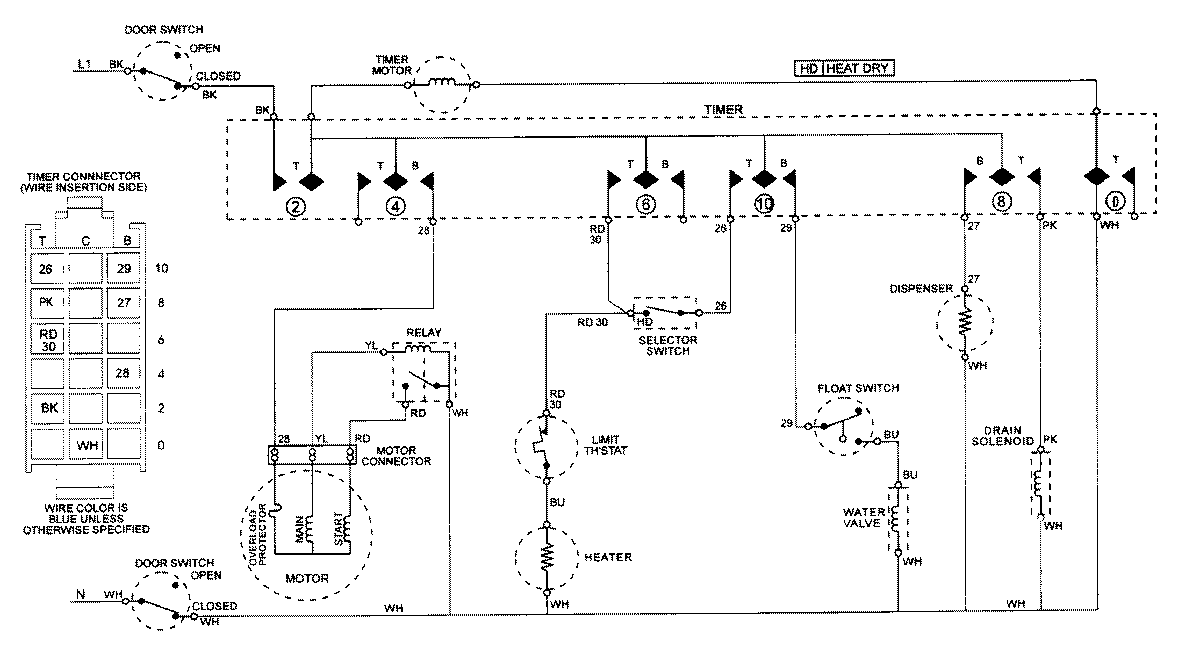
CDU250B 07 – WIRING INFORMATIONadmin2025-04-26T09:26:26+00:00CDU250B 07 – WIRING INFORMATION ProductsPositionProductNIMAY 15001980