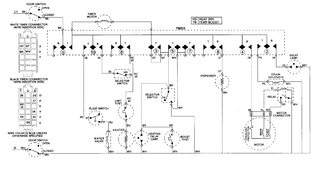
CDU450B 07 – WIRING INFORMATIONadmin2025-04-26T09:27:07+00:00CDU450B 07 – WIRING INFORMATION ProductsPositionProductNIMAY 15002071