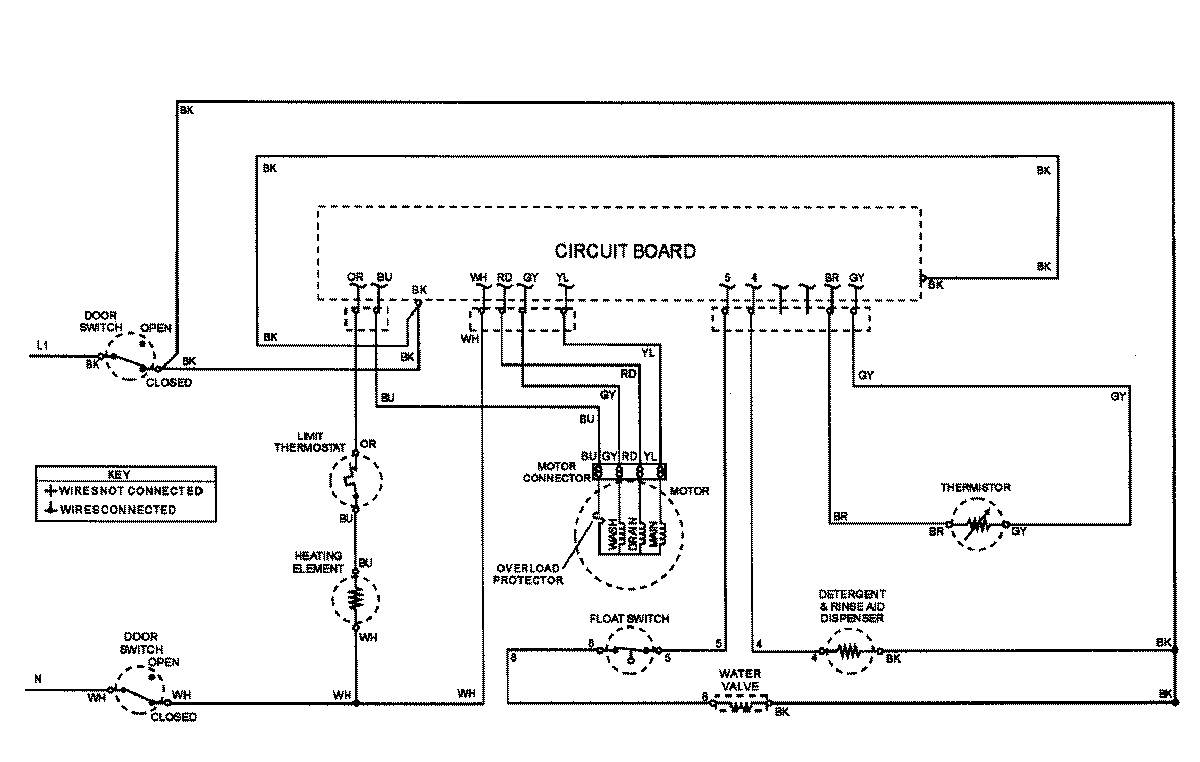
CDU810B 07 – WIRING INFORMATIONadmin2025-04-26T09:28:10+00:00CDU810B 07 – WIRING INFORMATION ProductsPositionProductNIMAY 15002835NIMAY 15002868