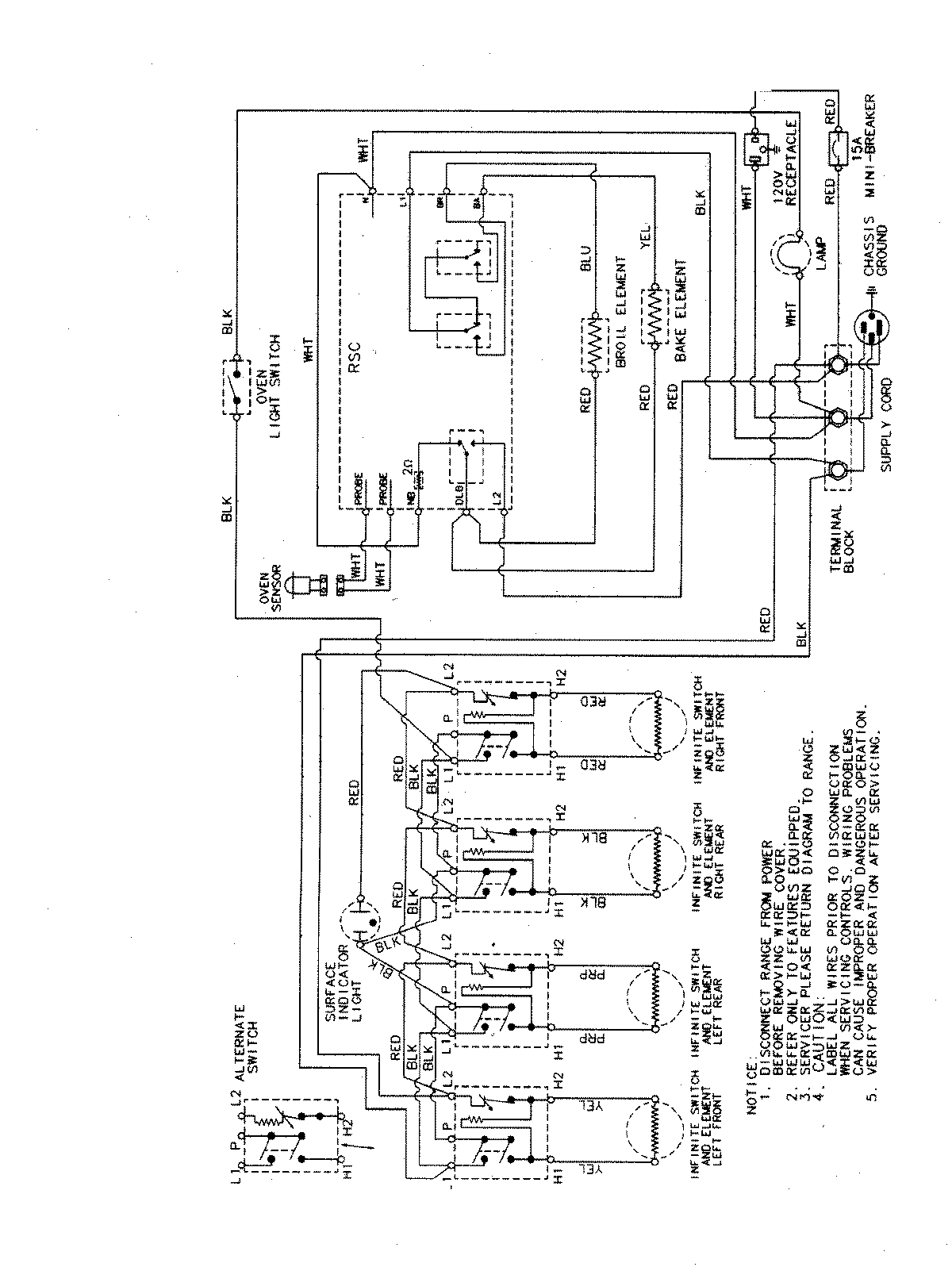
CE35110BCV 07 – WIRING INFORMATIONadmin2025-04-26T09:28:10+00:00CE35110BCV 07 – WIRING INFORMATION ProductsPositionProductNIMAY 15002852