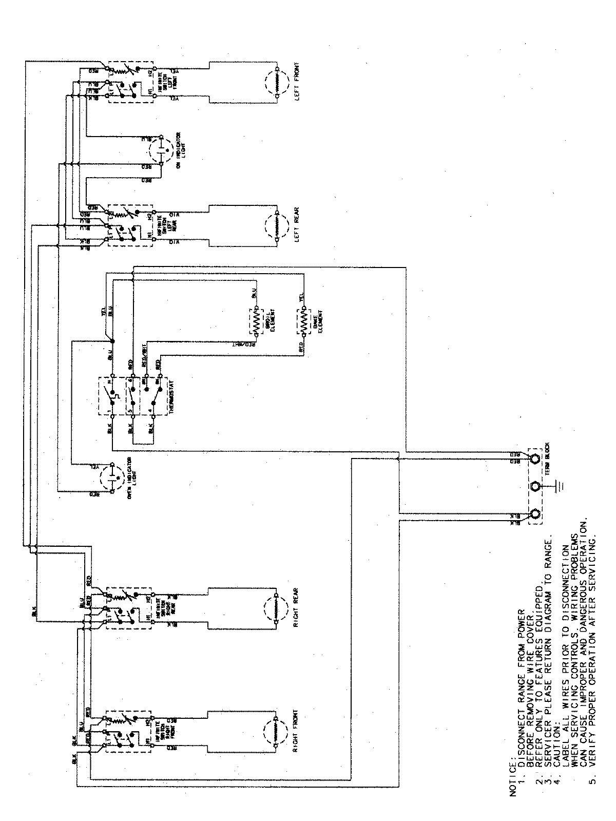
CE35200AAQ 07 – WIRING INFORMATIONadmin2025-04-26T09:28:44+00:00CE35200AAQ 07 – WIRING INFORMATION ProductsPositionProductNIMAY 15003596