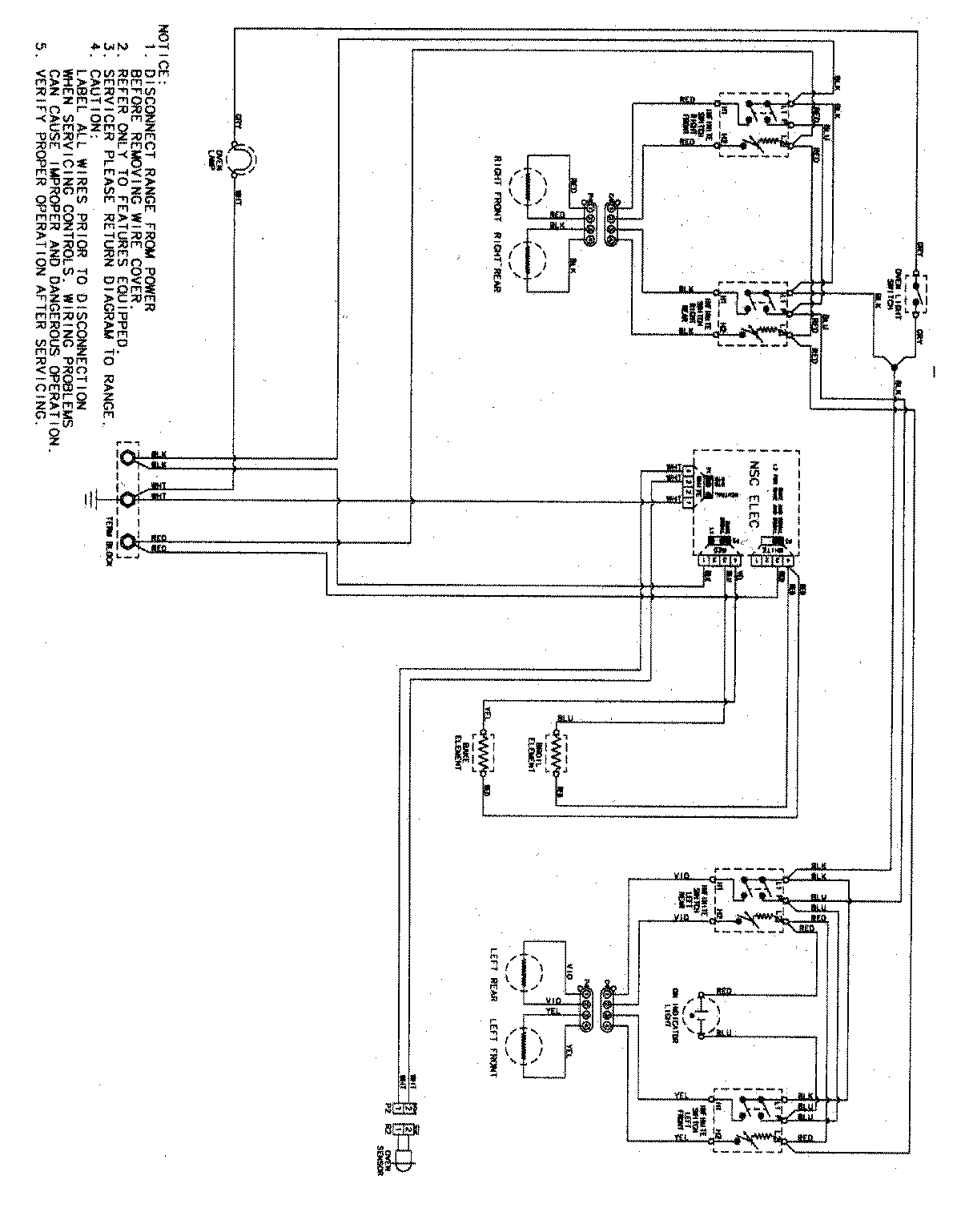
CE35400AAV 07 – WIRING INFORMATIONadmin2025-04-26T09:26:27+00:00CE35400AAV 07 – WIRING INFORMATION ProductsPositionProductNIMAY 15003491