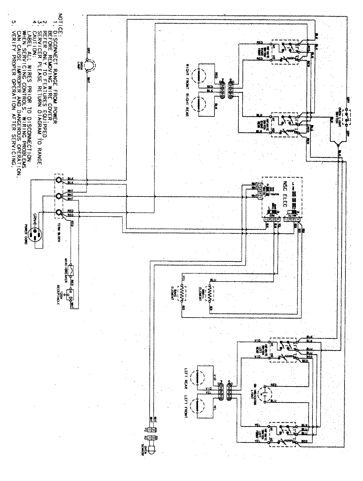
CE35400ACV 07 – WIRING INFORMATIONadmin2025-04-26T09:26:51+00:00CE35400ACV 07 – WIRING INFORMATION ProductsPositionProductNIMAY 15003617