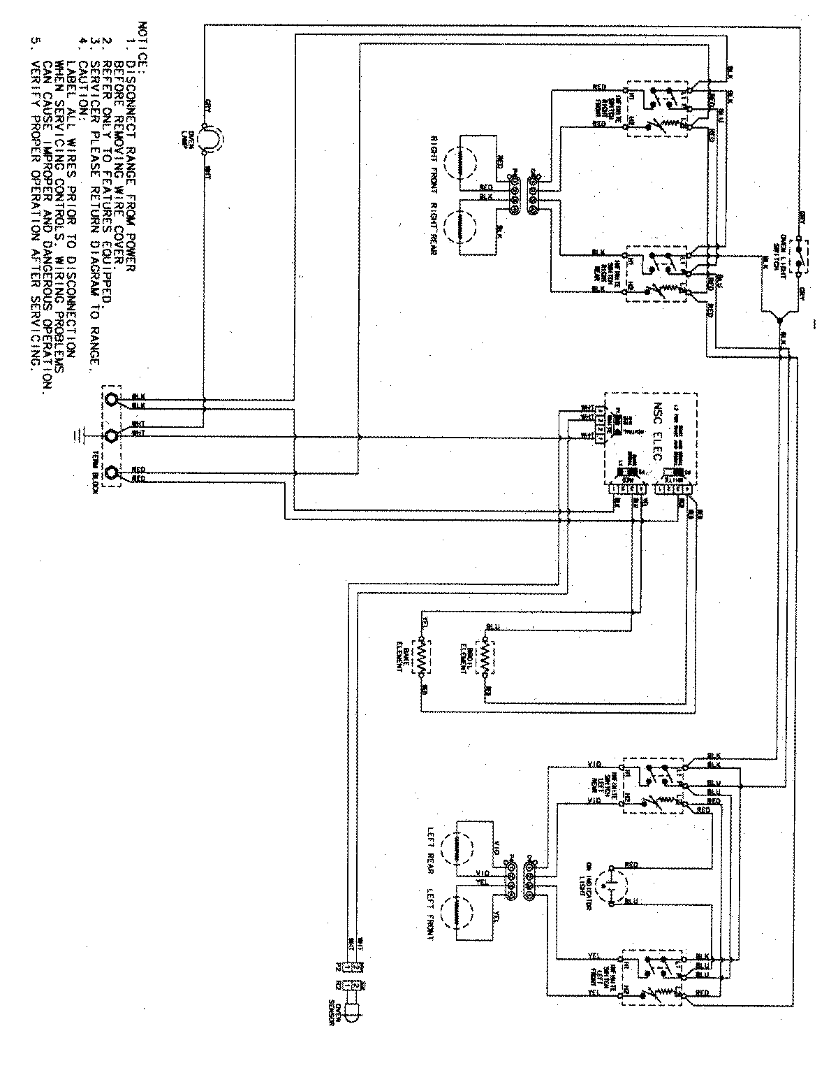
CE38600AAB 08 – WIRING INFORMATIONadmin2025-04-26T09:26:25+00:00CE38600AAB 08 – WIRING INFORMATION ProductsPositionProductNIMAY 15003494