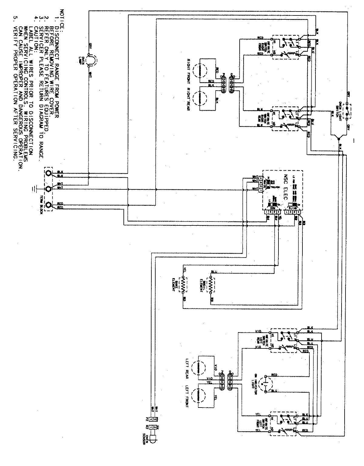
CE38600AAQ 08 – WIRING INFORMATIONadmin2025-04-26T09:27:14+00:00CE38600AAQ 08 – WIRING INFORMATION ProductsPositionProductNIMAY 15003494