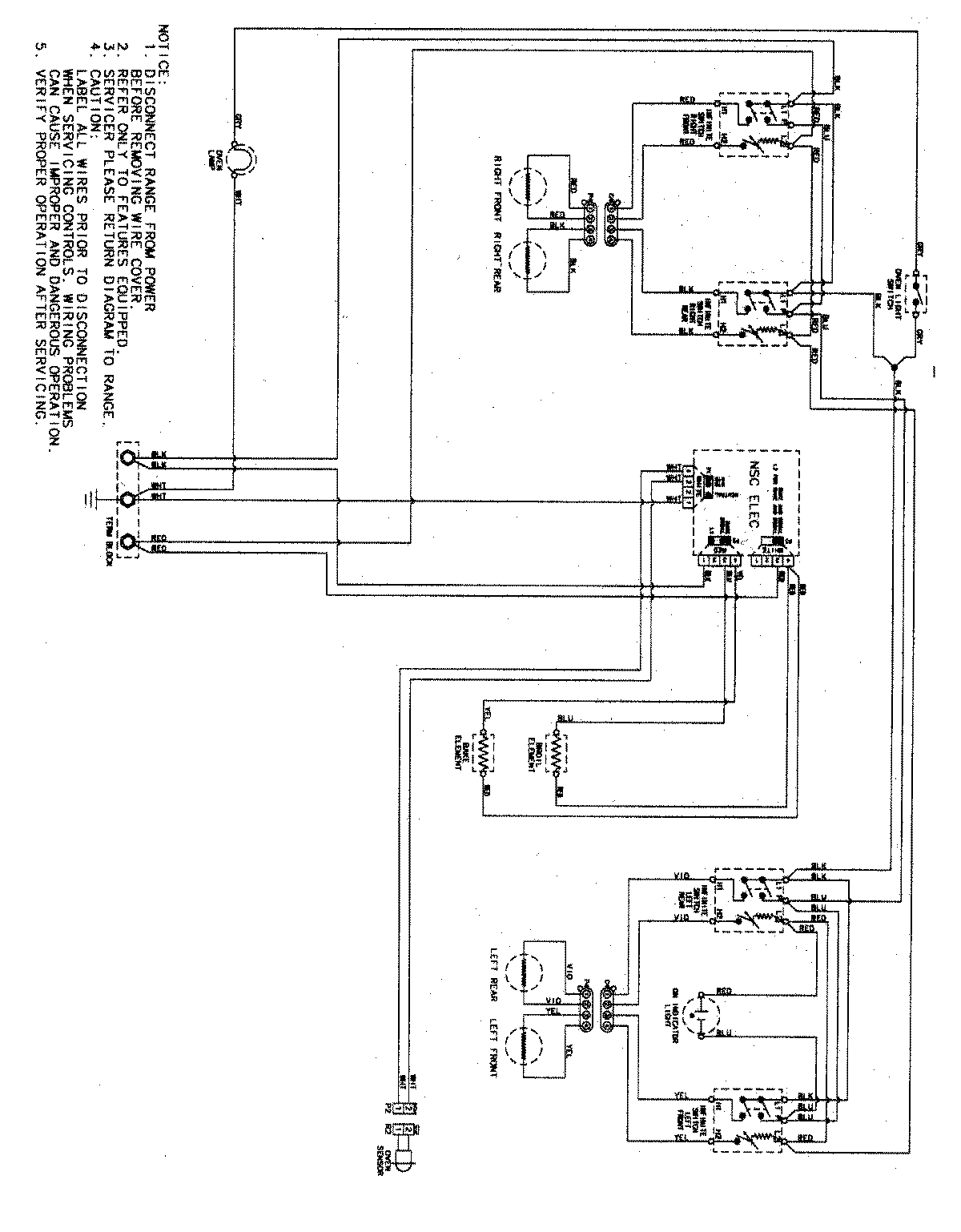
CE38600AAV 08 – WIRING INFORMATIONadmin2025-04-26T09:28:57+00:00CE38600AAV 08 – WIRING INFORMATION ProductsPositionProductNIMAY 15003494