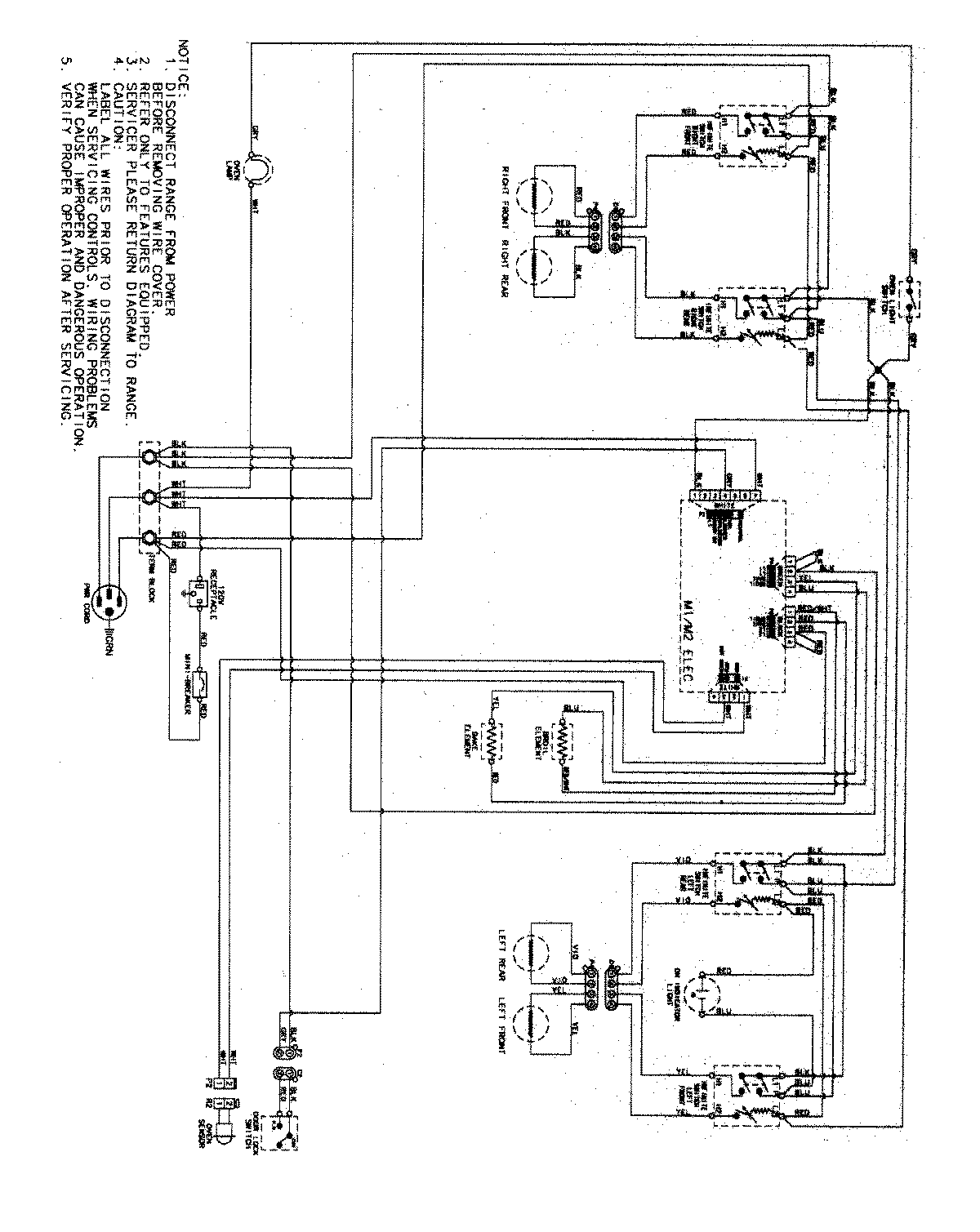
CE38600ACV 08 – WIRING INFORMATIONadmin2025-04-26T09:30:45+00:00CE38600ACV 08 – WIRING INFORMATION ProductsPositionProductNIMAY 15003611