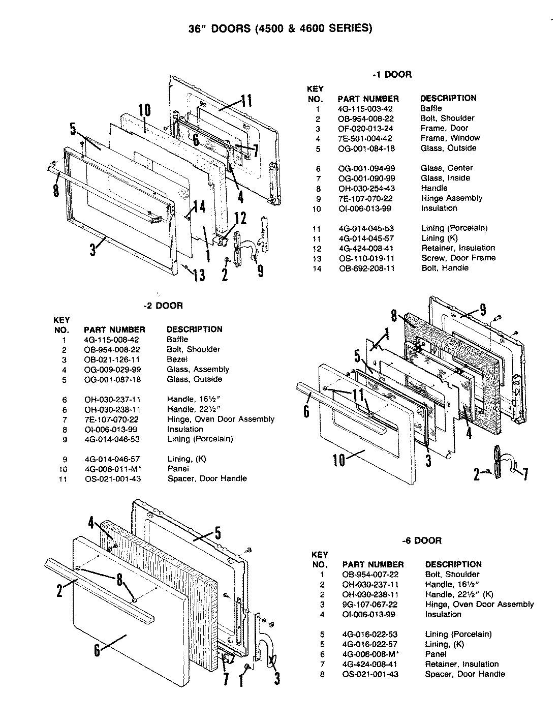
CF4612MW539RK 07 – DOOR (-2 MODELS)admin2025-04-26T08:58:31+00:00CF4612MW539RK 07 – DOOR (-2 MODELS) ProductsPositionProduct1MAY 4G115008422MAY Y0B954008223MAY 0B021126114MAY 0G009029995MAY 0G001087186MAY Y0H030237116MAY 0H030238117MAY 7E107070228MAY 0I006013999MAY 4G014046579MAY 4G0140465310MAY 4G008011MW11MAY Y0S02100143