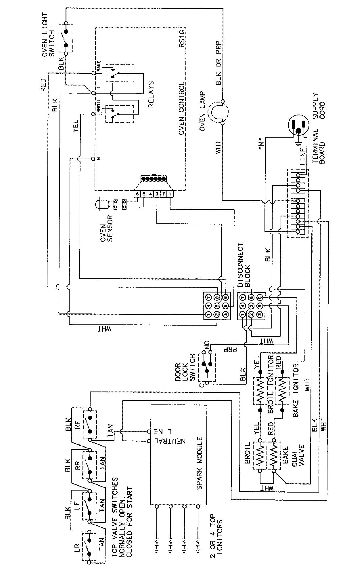
CG34700BDQ 07 – WIRING INFORMATIONadmin2025-04-26T09:32:35+00:00CG34700BDQ 07 – WIRING INFORMATION ProductsPositionProductNIMAY 15002242