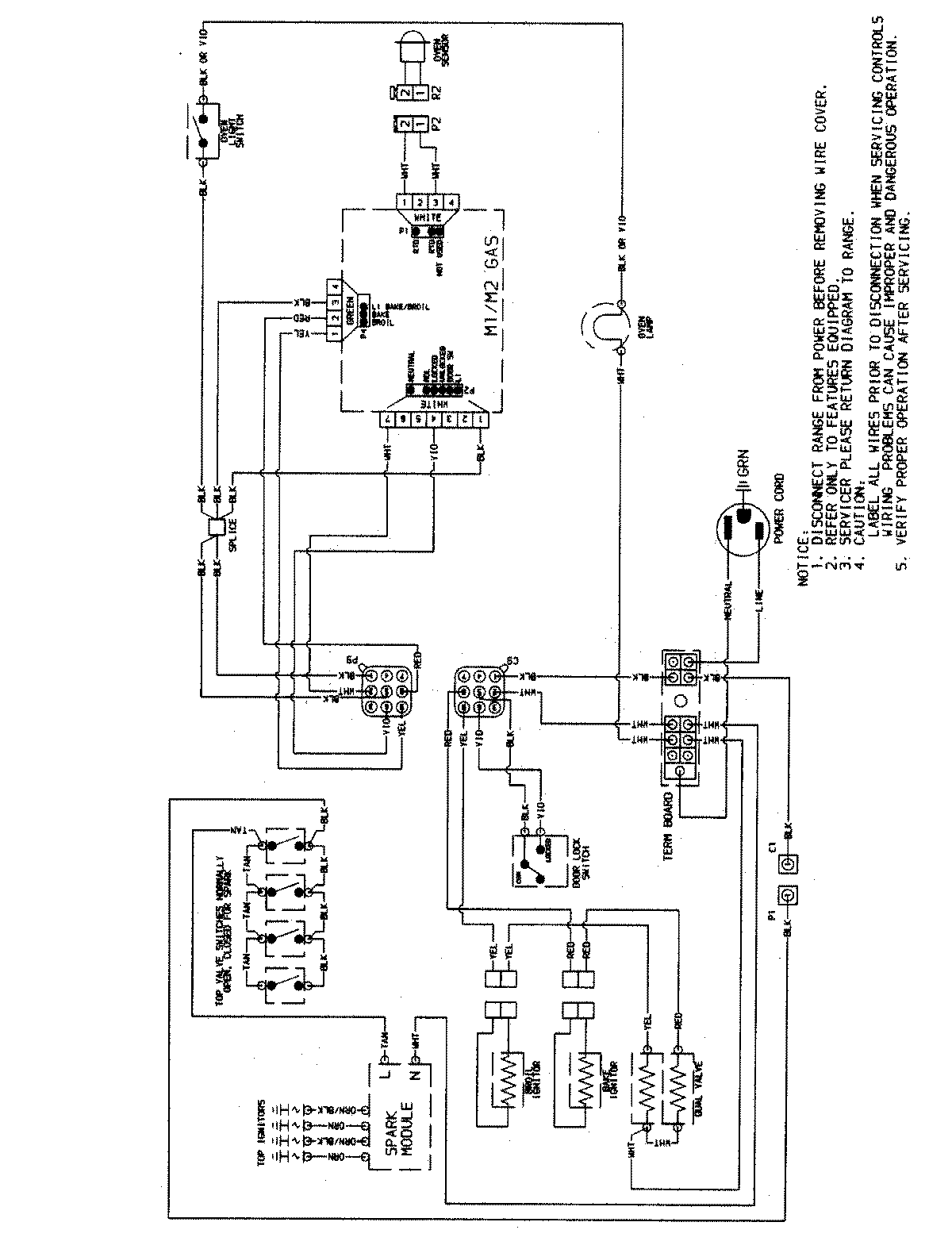
CG34800ADS 07 – WIRING INFORMATIONadmin2025-04-26T09:35:08+00:00CG34800ADS 07 – WIRING INFORMATION ProductsPositionProductNIMAY 15003515