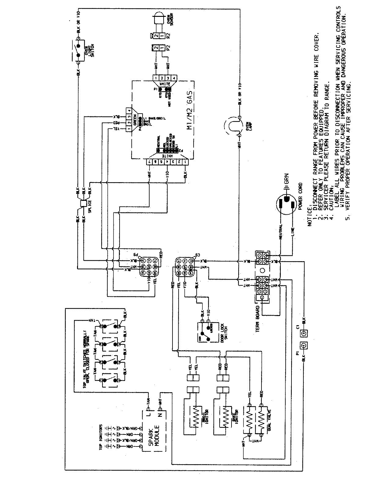
CG34800ADT 08 – WIRING INFORMATIONadmin2025-04-26T09:35:39+00:00CG34800ADT 08 – WIRING INFORMATION ProductsPositionProductNIMAY 15003515