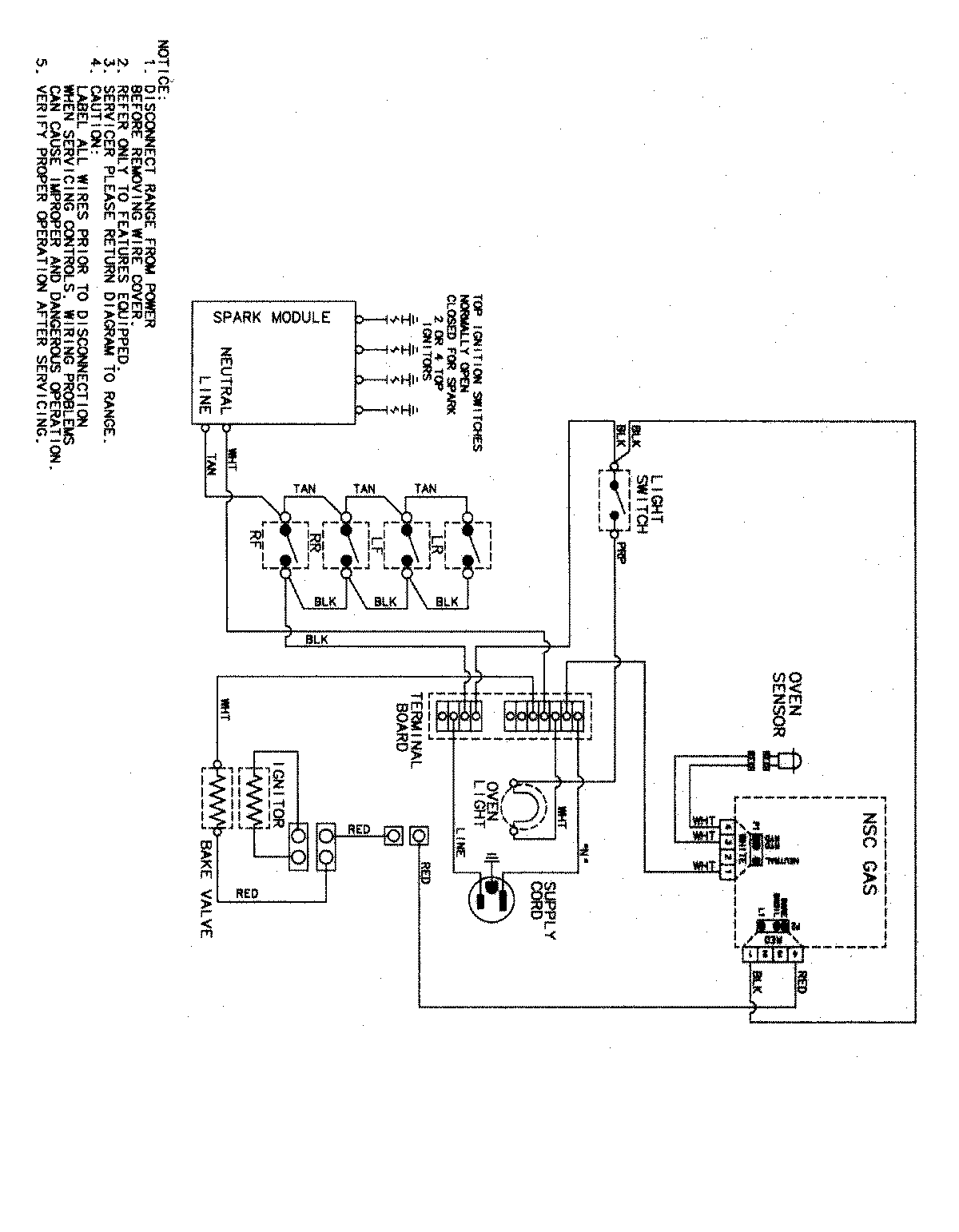
CGR1425ADQ 07 – WIRING INFORMATIONadmin2025-04-26T09:37:23+00:00CGR1425ADQ 07 – WIRING INFORMATION ProductsPositionProductNIMAY 15003530