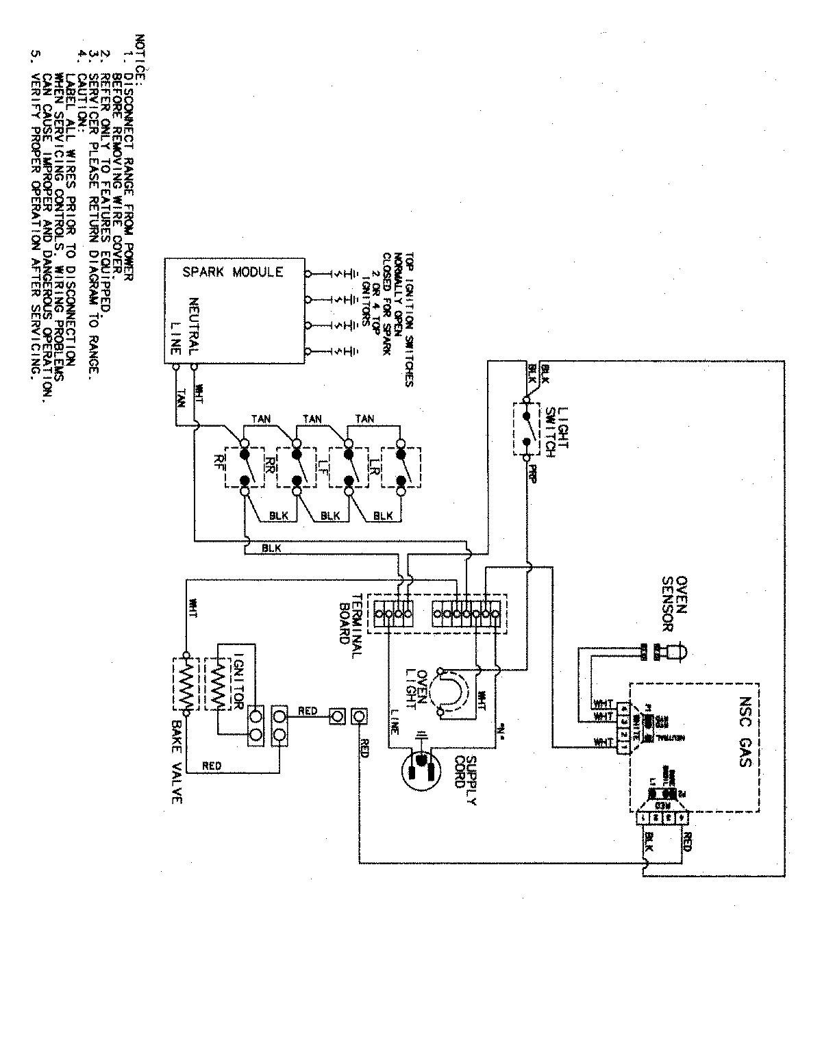
CGR1425ADT 07 – WIRING INFORMATIONadmin2025-04-26T09:37:07+00:00CGR1425ADT 07 – WIRING INFORMATION ProductsPositionProductNIMAY 15003530