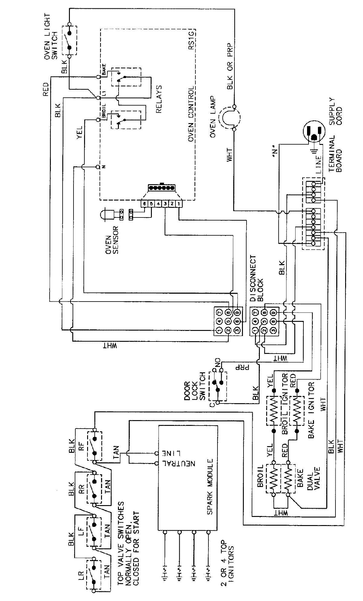
CGR3730ADH 07 – WIRING INFORMATIONadmin2025-04-26T09:38:24+00:00CGR3730ADH 07 – WIRING INFORMATION ProductsPositionProductNIMAY 15002242