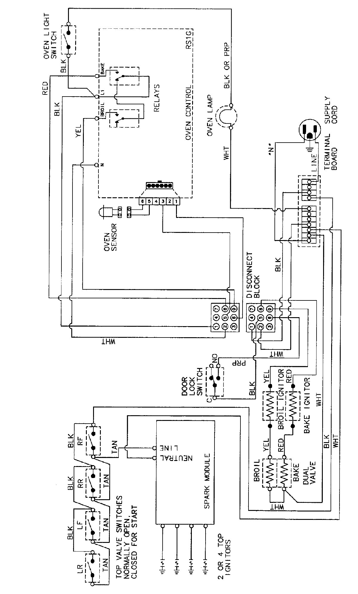
CGR3740ADW 07 – WIRING INFORMATIONadmin2025-04-26T09:36:24+00:00CGR3740ADW 07 – WIRING INFORMATION ProductsPositionProductNIMAY 15002242