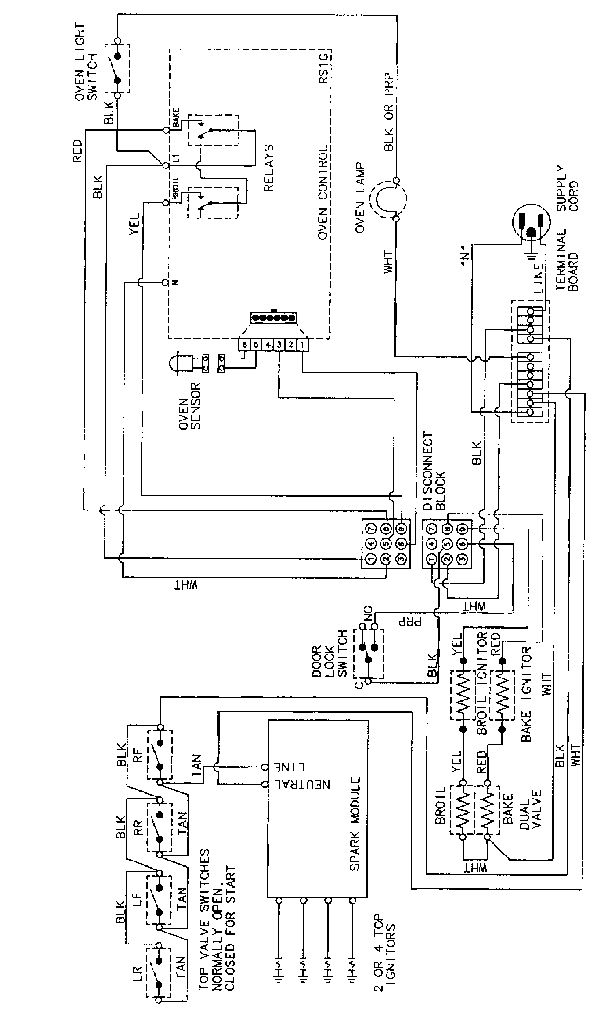
CGR3740BDW 07 – WIRING INFORMATIONadmin2025-04-26T09:37:50+00:00CGR3740BDW 07 – WIRING INFORMATION ProductsPositionProductNIMAY 15002242