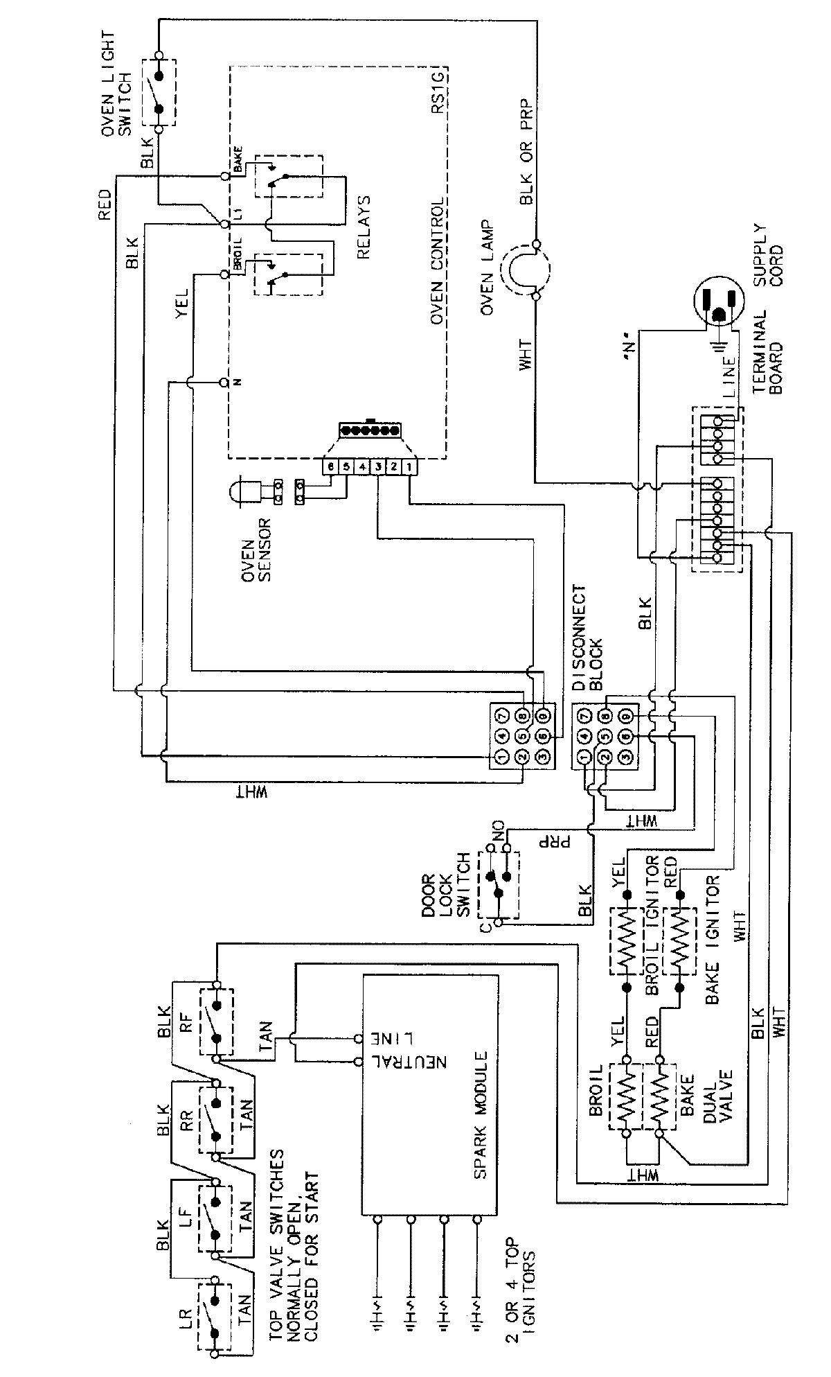
CGR3742ADW 07 – WIRING INFORMATIONadmin2025-04-26T09:40:31+00:00CGR3742ADW 07 – WIRING INFORMATION ProductsPositionProductNIMAY 15002242