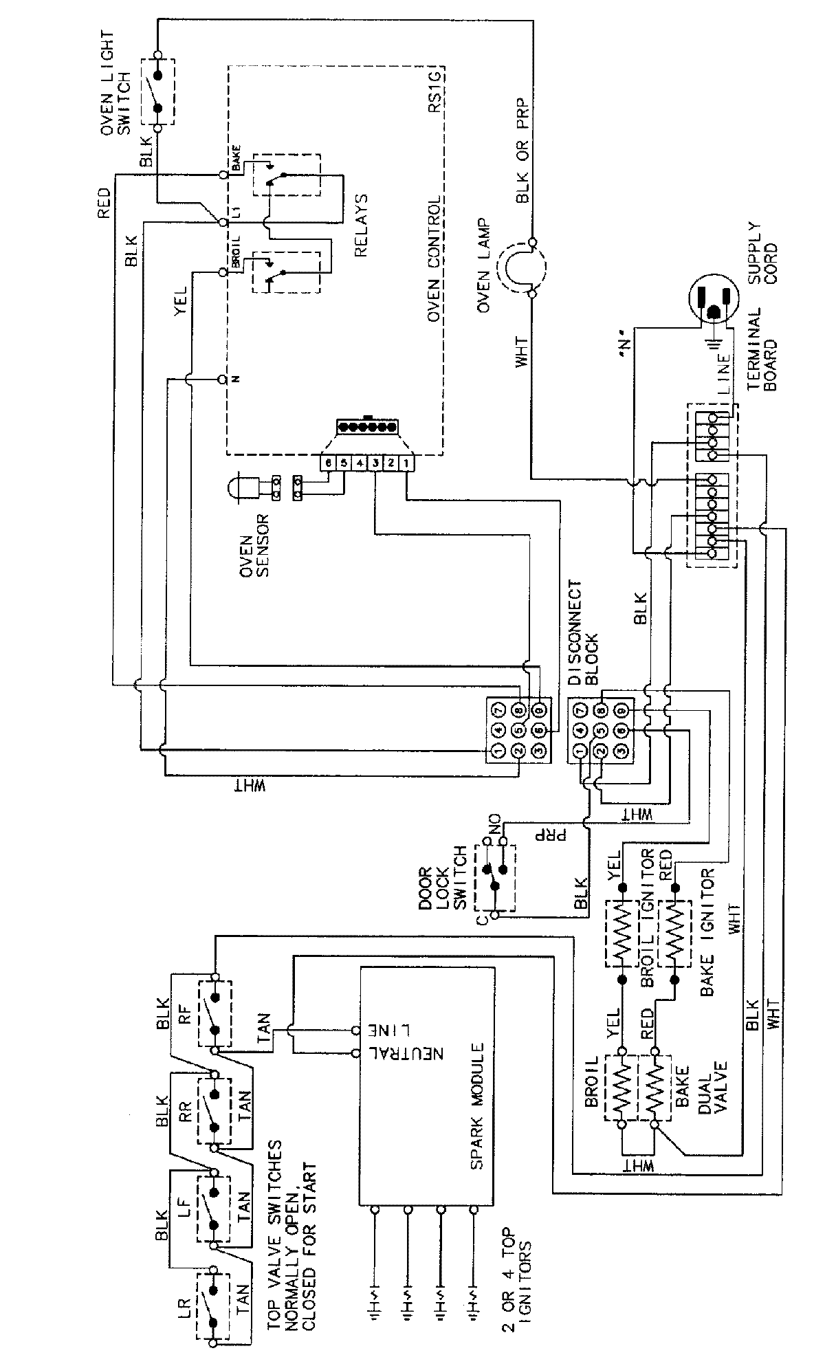
CGR3742BDQ 07 – WIRING INFORMATIONadmin2025-04-26T09:39:20+00:00CGR3742BDQ 07 – WIRING INFORMATION ProductsPositionProductNIMAY 15002242