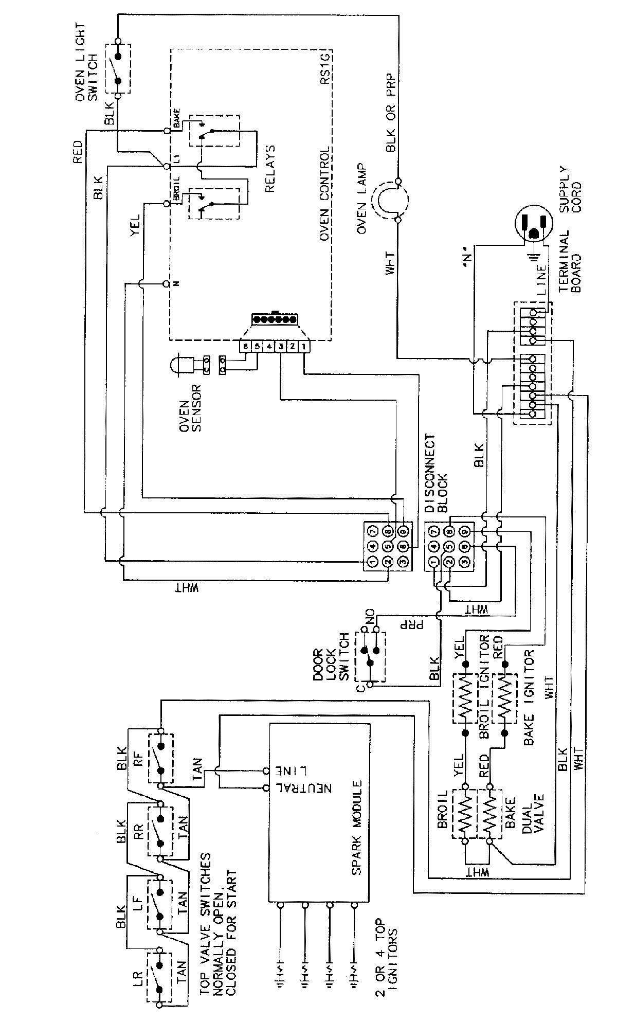
CGR3742BDW 07 – WIRING INFORMATIONadmin2025-04-26T09:38:24+00:00CGR3742BDW 07 – WIRING INFORMATION ProductsPositionProductNIMAY 15002242