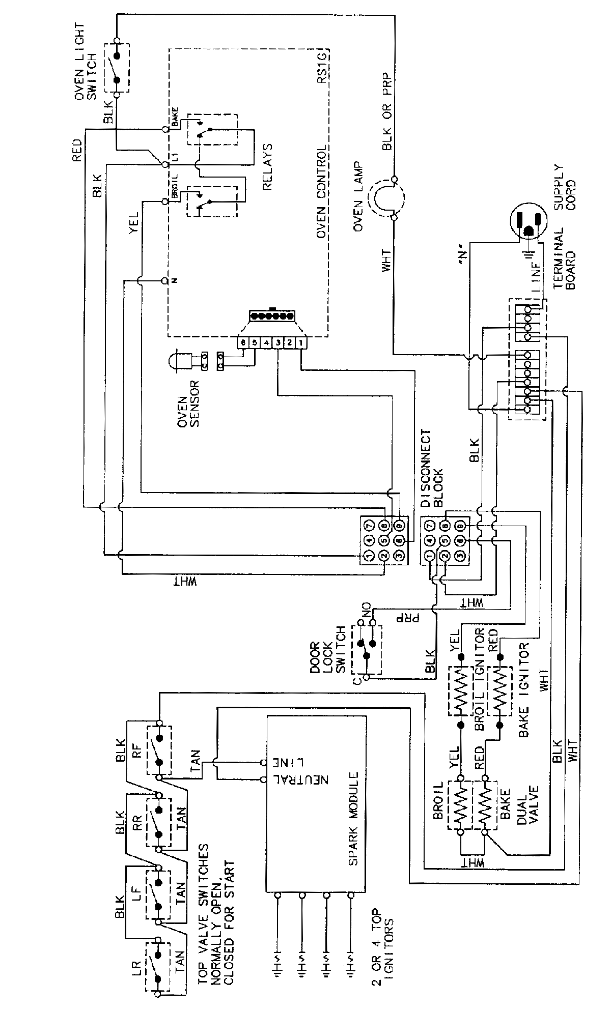
CGR3742CDH 07 – WIRING INFORMATIONadmin2025-04-26T09:37:10+00:00CGR3742CDH 07 – WIRING INFORMATION ProductsPositionProductNIMAY 15002242