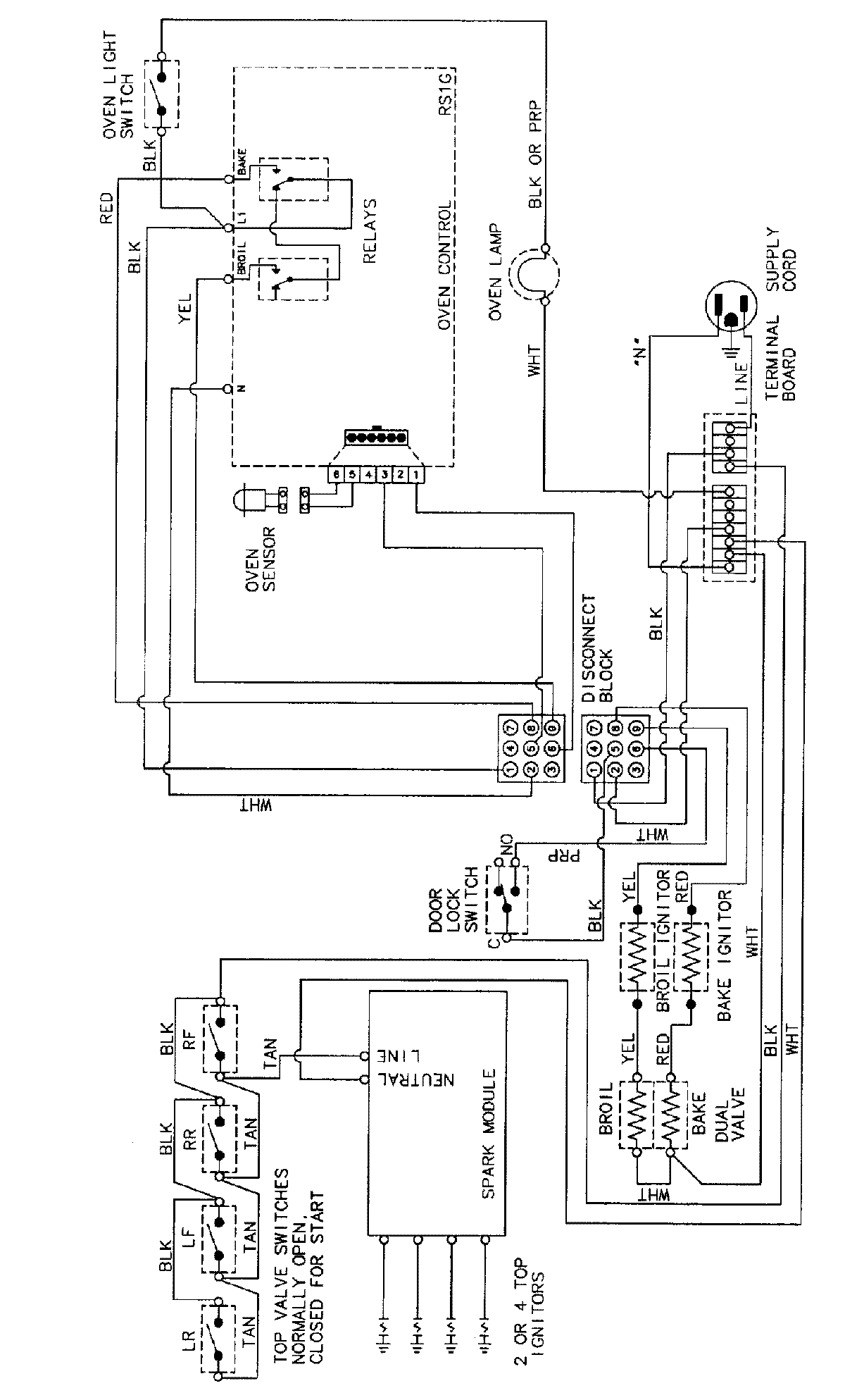
CGR3742CDQ 07 – WIRING INFORMATIONadmin2025-04-26T09:40:11+00:00CGR3742CDQ 07 – WIRING INFORMATION ProductsPositionProductNIMAY 15002242