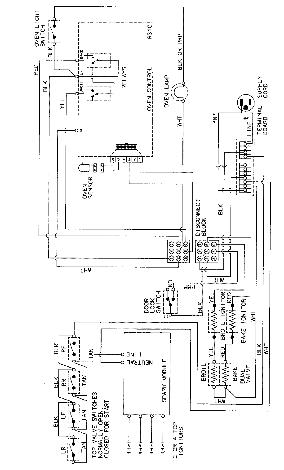
CGR3742CDT 07 – WIRING INFORMATIONadmin2025-04-26T09:37:53+00:00CGR3742CDT 07 – WIRING INFORMATION ProductsPositionProductNIMAY 15002242