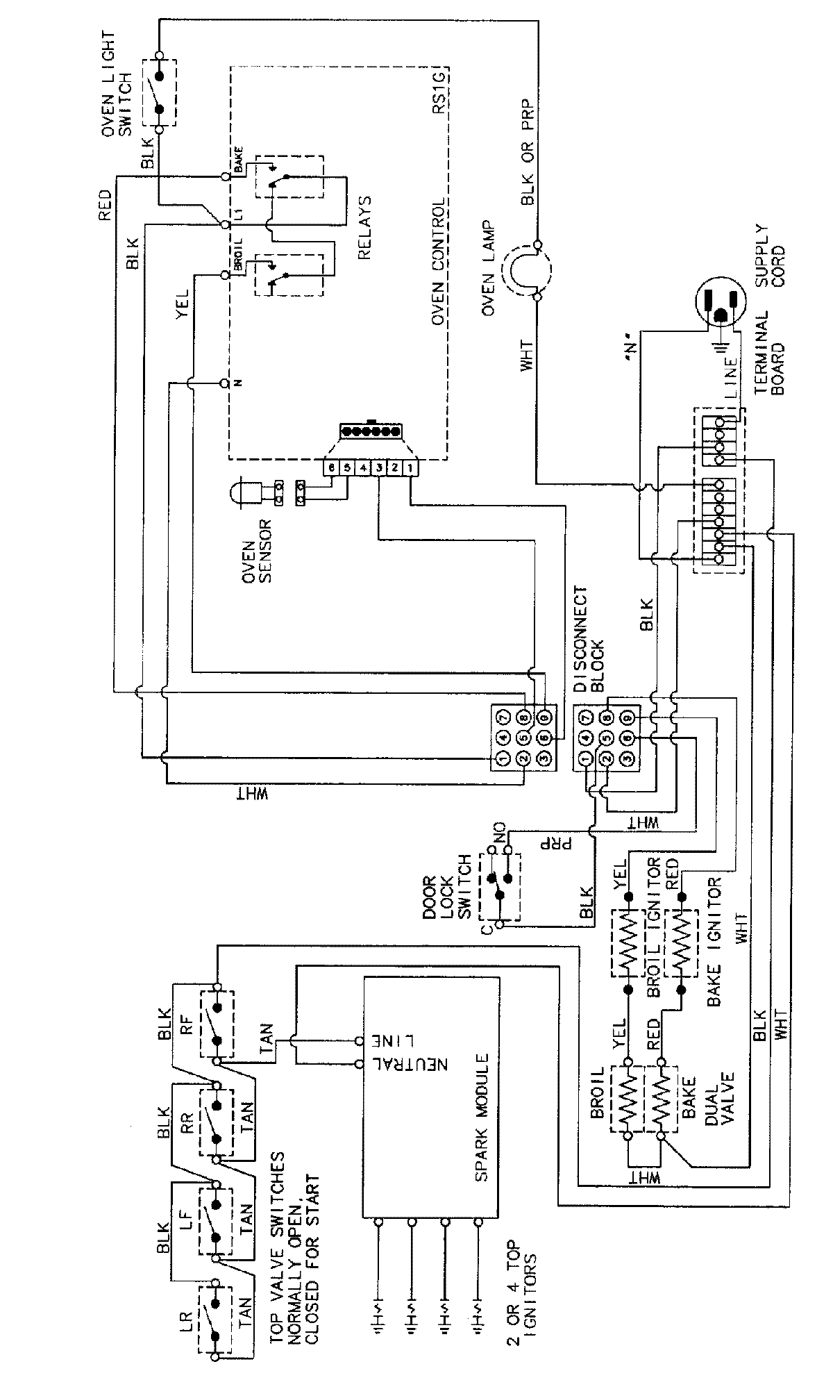
CGR3742CDW 07 – WIRING INFORMATIONadmin2025-04-26T09:38:42+00:00CGR3742CDW 07 – WIRING INFORMATION ProductsPositionProductNIMAY 15002242