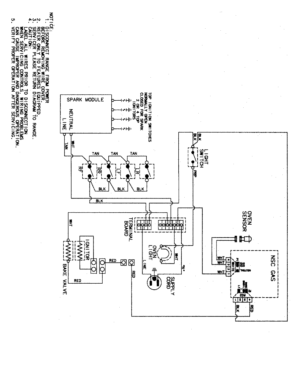
CP31600ADQ 08 – WIRING INFORMATION

CP31600ADQ 08 – WIRING INFORMATION

Products

PositionProduct
NIMAY 15003530