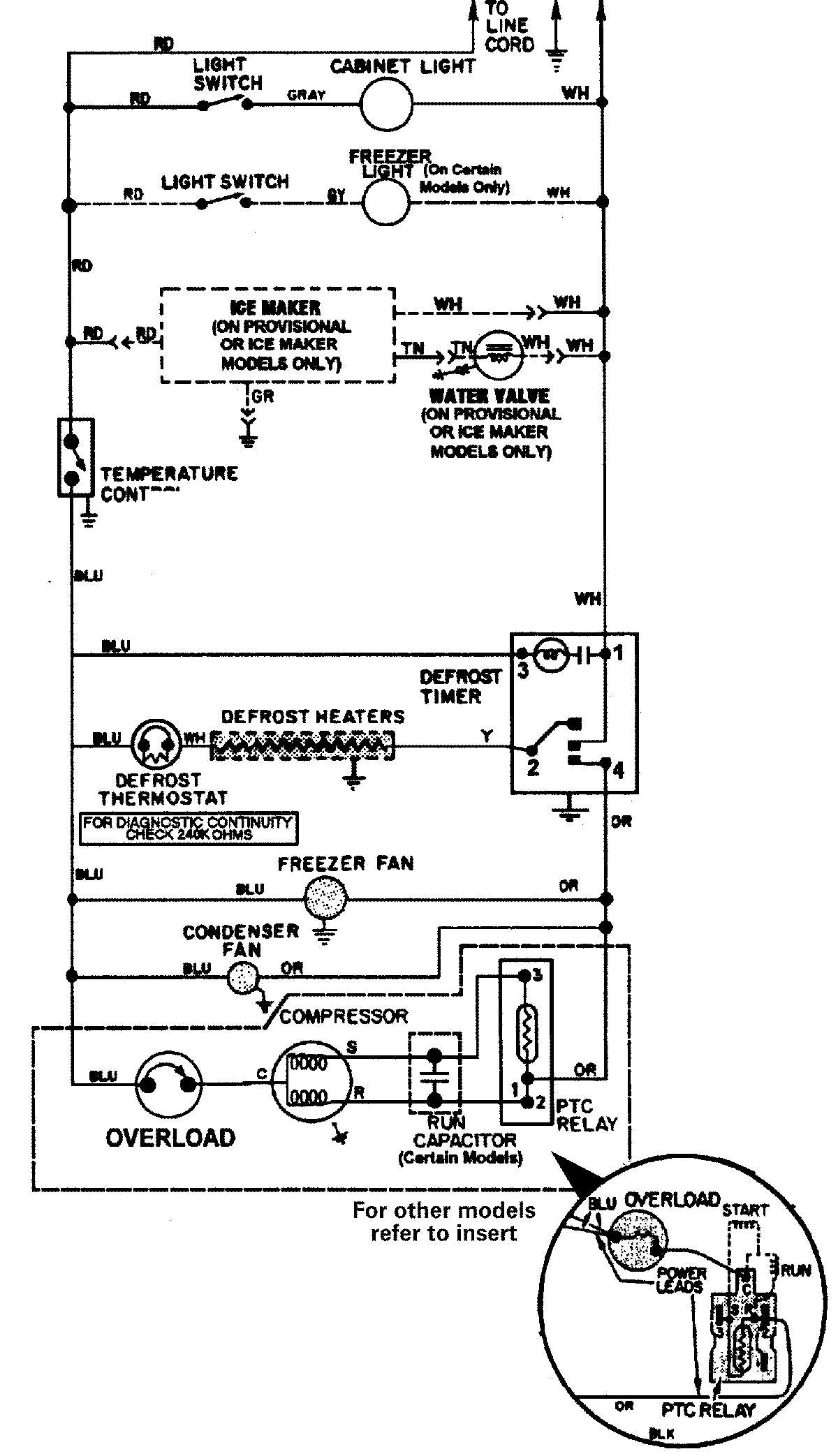
CT15F4Q 09 – WIRING INFORMATIONadmin2025-04-26T11:19:29+00:00CT15F4Q 09 – WIRING INFORMATION ProductsPositionProductNIMAY 15002683