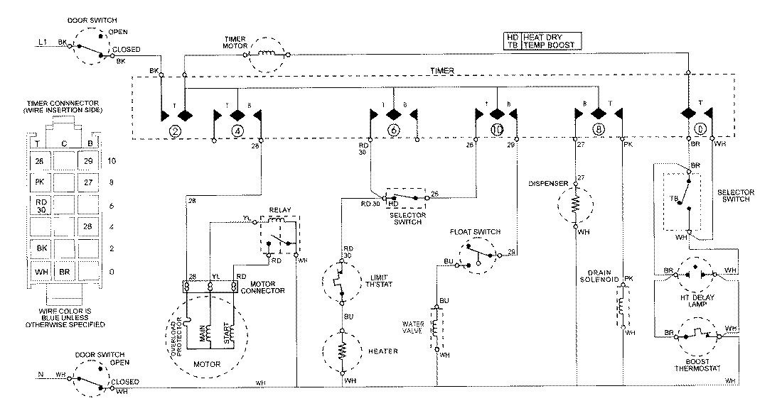
DC4000B 08 – WIRING INFORMATIONadmin2025-04-26T08:56:31+00:00DC4000B 08 – WIRING INFORMATION ProductsPositionProductNIMAY 15001983